查看完整案例


收藏

下载
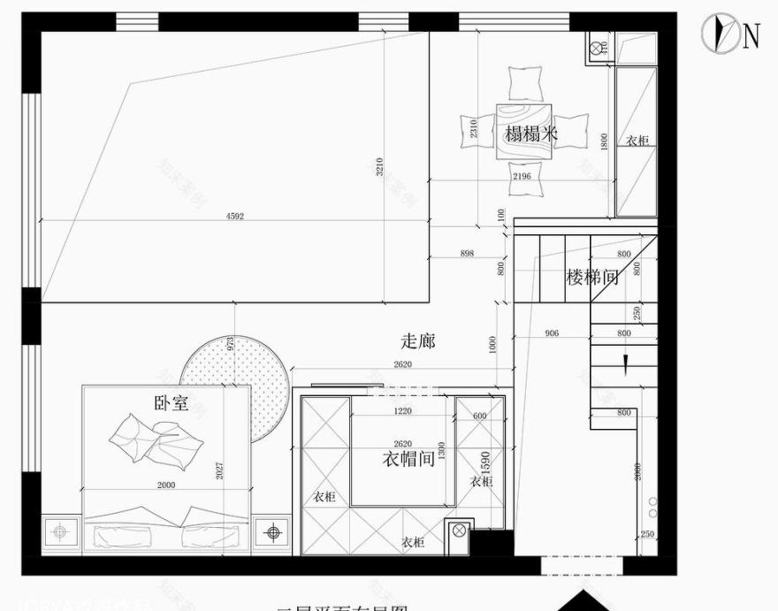
交房的时候,业主拿到的就是一个超级方正的户型(如图),两面有窗,两面无采光,进去一览无余。原户型面积为45平米,层高4米。看到房的第一想法,就是要做复式、阁楼。但是完全做复式的话,楼层就会比较矮,正常复式楼层层高一般都是2.4米,业主家层高4米,显然不满足这个条件。最后经过和设计师沟通,决定做成部分挑空的loft。
家里只有业主夫妻两人居住,没有老人小孩,不需要有太多的私密空间,所以大部分空间都做成了开放式。开放式厨房,半开放式的书房,完全贴合了loft自由开放的主题。
业主有两方面的需求:一是要空间通透,虽然是双层但要显得不矮;二是卫生间要高。
针对第一个需求,客厅有两扇超大的落地窗,完全满足了客厅、书房、厨房以及二层卧室的采光。客厅是挑高设计,并且二层空间几乎全部开放,视觉上基本无障碍,空间通透自由,根本不会显矮。
针对第二个需求,业主想要超高的卫生间,满足她!设计师将卫生间部分设计成有落差的空间,卫生间高,衣帽间相对就矮一些。本来已经做好了暗卫的准备,没想到落差做出来后给了大家一个惊喜,卫生间意外得到了一个采光口,不再是暗卫,空间也显得更有灵气。
硬装完成后的玻璃采光口。
门厅只有1.5米宽,单设置鞋柜及鞋凳就显得太过于拥挤。设计师将第二级台阶做了拉伸,同时实现了换鞋凳、鞋柜的功能。
设计师做的效果图,还原度简直达到了99%!
楼梯选用了半箱体,半框架的设计,利用箱体的空间做成了储物衣柜,同时也起到了一定的“屏风”作用。进户门厅距楼梯只有2米,如果全部箱体在视觉上就会显得狭隘,所以进门这一段楼梯做成了框架式,有助于视觉上的旷阔。
大大的穿衣镜,每天出门前照一照,整理下自己的穿着,仪式感爆棚。
箱体式楼梯底部做成了挂衣区,也可以是一个小型的储物间。
大大的落地窗让客厅阳光四溢,客厅没有过大的饰物遮挡阳光,通透明亮的视觉享受让人感受到生活的美好。
换个角度感受客厅的美好。
开放式厨房和吧台结合的设计,取消了餐桌,这样的设计正适合只有业主夫妻居住的家。
设计一个小吧台,厨房的颜值提高不止一点点哟!直接用小吧台作为隔断,分割出两个功能分区。打造家里的休闲区,也装饰了整个家装环境。
这个角度可以看到,楼梯延伸到门厅的末端做了一个洞,设计成雨伞支桶。
电视墙做了客厅和书房之间的隔断。书房和客厅分享一面超大的窗户,采光超级棒。
用一个书架装饰了整面墙,那自上而下满墙设计的书架,总令人心生满足与艳羡之情。临近窗户(要大,最好是落地窗)的墙面是最适合满墙装书架的位置,大量采光能将视觉压迫感降至最低。
卧室做成了开放式,但又不是完全没有私密性,垂在两边的窗帘就像护卫,随时等待主人的召唤。
衣帽间下方是意外得来的玻璃透明采光口。
以透明玻璃门设计让干湿区得以分离,互不干扰。毛巾架固定在玻璃门上,浴室柜和墙上内嵌橱柜设计满足了收纳需求,又充满了设计美感。
客服
消息
收藏
下载
最近























