查看完整案例


收藏

下载
通过运动的跑道,让场所产生环绕包围的动线引导,结合品牌独有的特性与元素,让整个空间简约又灵动。
大厅主要由服务吧台与休息区组成。
进门正对面是服务吧台,白色台面搭配后侧木饰面板以及彩色灯饰,自然、简洁又有点睛之笔。
弧形元素从入口位置一直贯穿整个空间,尤其是地面铺设的明黄色跑道,将人的视线直接拉伸至内部。
整个空间以简洁的白色搭配冷静的中灰,辅以暖光灯线和原木元素,不仅带来简约的清爽感,同时还给人一种宁静中带着恰到好处活泼之感的体验,打造出了一个既宁静优雅,又鲜活生动的大厅。
顶部大胆地保留了原始建筑结构,硬朗的管线和水泥搭极简且现代的吊灯,一冷一暖交织在一起,一切都恰到好处。
公共大厅内部,划分出了不少独立的功能区域,但每个功能区域之间,都打破了传统,以半封闭半开放的形式为主要布局方式
比如两处容易被忽略的角落空间,靠近进门位置的区域,布置成了一个小小的儿童活动区,大人可以带着孩子在这里短暂娱乐。
临近休息室和场馆的区域,则布置成了茶水间,动线十分便捷。
公区内专门为员工开辟出了一间独立办公室。
这里虽然面积不大,但以II型结构布置的书桌,既能满足日常使用及储物需求,又能留出足够宽敞的走道空间,方便员工们在此处休息和办公。
有别于其它空间的鲜活明快,为了营造更加专注的工作氛围,这里以白+原木为主色,辅以少量绿植搭配,宁静优雅中带有一丝清新自然的气息。
运动场馆和咨询室相同,都采用了半透明落地玻璃门,通透度与私密感兼具。
每个场馆分别满足活动所需的空间面积,并配以少量开放式储物柜,以满足收纳各种器械和玩具的需求。
除此之外,不同场馆通过不同的色彩,带来不同的使用体验。
第一个第二个场馆以蓝色为主调,搭配颇具工业风格的中灰色天花板,清爽又硬朗。
第三个场馆以清新的绿色为主调。
天花板也特意涂刷成了优雅的莫兰迪绿,既不会过于亮眼,又能让身处其中的人感到无比放松。
围绕着吧台区而设的,是三间独立咨询室。
每间咨询室都以磨砂玻璃代替传统隔断墙,既能增加通透感、延伸视觉空间层次,又能保有一定的隐私感,且在心理层面也能给家长和孩子,带来透明、可靠的感受。
咨询室内部的家具及色彩搭配也很有讲究,整体色调内外相呼应,统一又和谐。
材质也以舒适且有质感的丝绒和真皮为主,不仅坐感佳,颜值也很耐看。
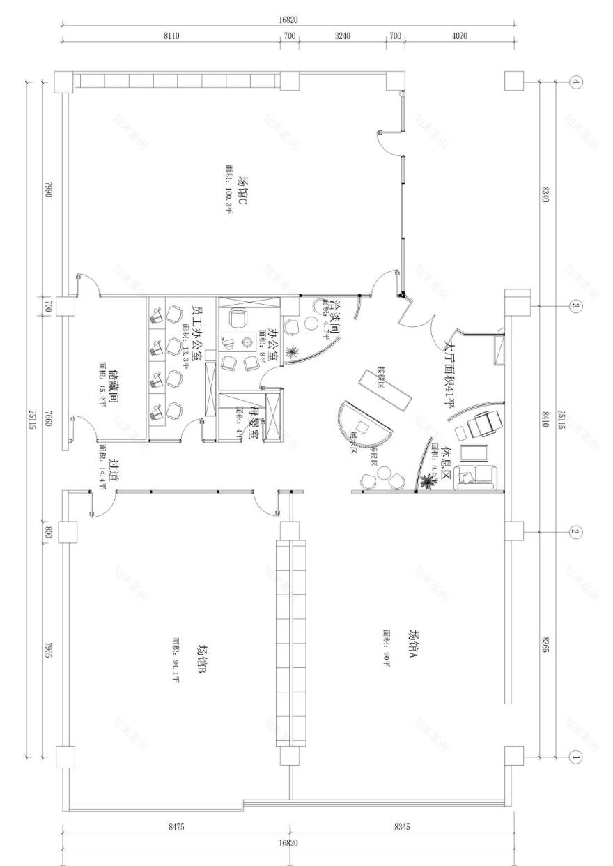
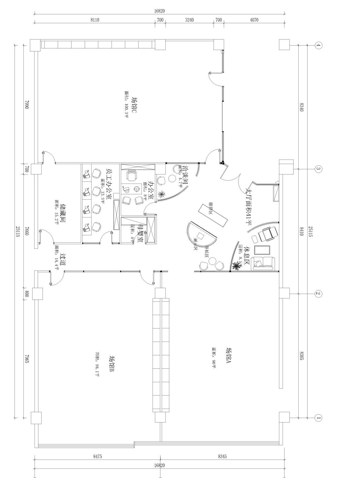
原始场地难点:
1、项目需要三块规格大小固定的场地分布在场地中;
2、空间满足场地要求外需要有配套的员工设备等空间;
3、管道管较多。
改造说明:
1、思考空间中各个功能空间的交互关系;
2、考虑商业模式吸引人流,人流互动,场地特点进行分析重组。
客服
消息
收藏
下载
最近




























