查看完整案例


收藏

下载
\"城市是一本打开的书,不同的人有不同的读法\",学者易中天在《读城记》开篇如此写:诚然,每一个城市都有它独特的魅力,在悠久而现代,传统又蕴含活力的漳浦,设计师以传承与探索的姿态打造出一个现代东方的『闲适雅居』,诠释出对新中式的品读与见解。
▲餐厅
Restaurant
开放式厨房,运用采光和布局的特点,更多考虑了空间的开放度,铸就流畅敞亮的通透感。
▲二层客厅
living room
金色元素是整个主题的百搭选择,使整个空间不至于过于压抑,在最恰当的位置互相映衬,与窗外偶尔照进的光一样,温和软糯,让人不知不觉就深陷其中。
▲佛堂
Temple
虽然整体采用中式风格,但在家具、软装、挂画的选择上,融入了比较现代、俏皮的元素,摆托了传统中式的老气,一尘不变的形态,这正是本案所追求要达到的效果。
▲三楼起居室
living room
电视背景采用创意现代新手法的山水画瓷砖大板分割,辅以古铜色的不锈钢线型,温和软糯的木饰面,时尚又有中式神韵,摆脱以往传统那种花鸟刺绣老气的风格。躺在这样舒服的沙发上,欣赏着仿佛有生命般的山水背景,任千年的故事顺指间流淌,就是一种享受。
▲主卧
Master bedroom
外不着相,内不动心,纯粹的装饰品,仿若水墨画中的留白,平淡之中暗浮出恰到好处的美与雅,储物柜一角的和谐,有一种传统文化的回归感,让简单的家居有了更耐人寻味的延伸感。
▲次卧
Bedroom
本案位于漳浦长德商贸城,一楼是沿街店面,二三楼为自住。业主是位比较念旧的人,所以保留了原房子的沙发及餐桌,设计师利用原有的家具,并结合业主的喜好,定义了本案的风格。
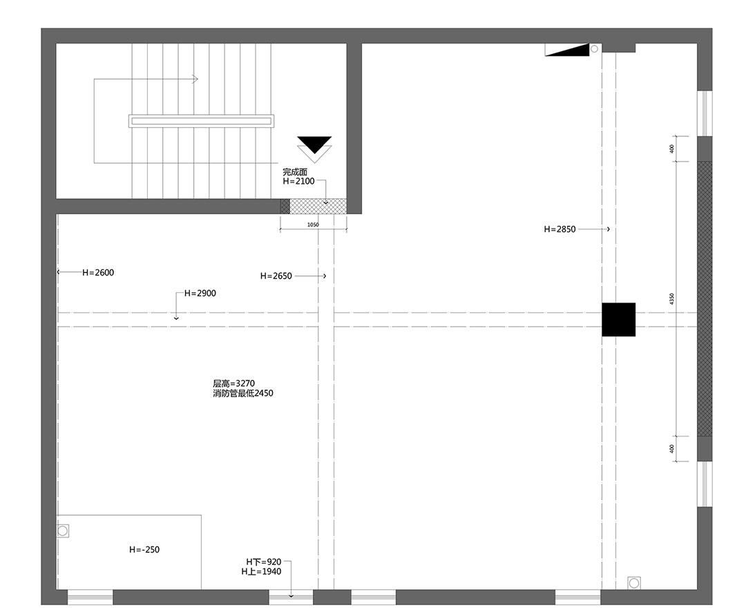
▲二层原始结构图
Original structure
▲三层原始结构图
Original structure
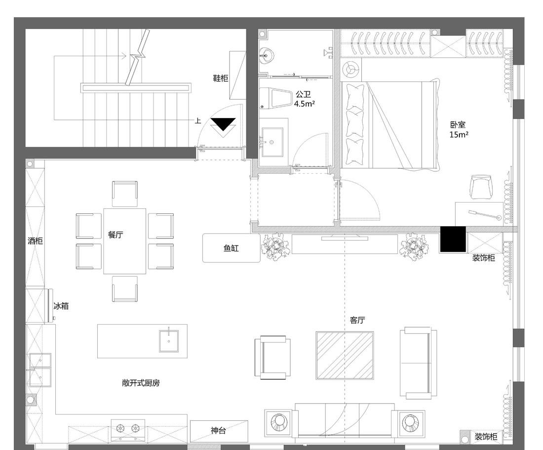
▲二层平面设计图
Plan design
▲三层平面设计图
Plan design
LOCATION_项目地点 | 漳浦·长德商贸城
AREA_项目面积 | 室内170m²
DESIGN STYLE_设计风格 | 现代东方
DESIGN TEAM_设计团队 | 问界设计团队
INTERIOR DESIGN_主案设计 | 傅少青、李少峰
MAIN MATERIALS_主要材料 | 瓷砖大板、木饰面、古铜不锈钢
客服
消息
收藏
下载
最近

























