查看完整案例

收藏

下载
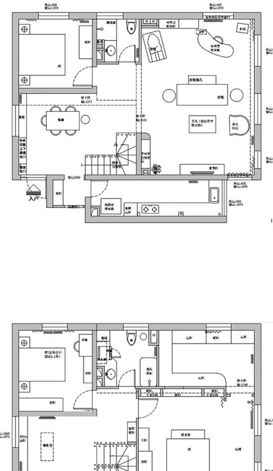
本案常住者为夫妻双方,孩子在上大学,长辈偶尔来住。空间改造上将原来的轻体隔间尽管可能的打开,让空间大气、整体,采光范围加大。储物空间上尽量做到融入硬装,不显突兀。搭配自然舒适,新自然主义与简美相协调。描绘出不同的自然风光。
房间入户门外有单独的门厅功能,本案入户后是开阔的餐厅楼梯间区域,空间之间互相借用公共空间。搭配做到整体协调。
灰紫色主题墙壁纸画,简洁的处理上还略显贵气。
层高及客厅面宽原因,主灯在保证能让空间亮起来的同时还要兼具一定装饰的作用。现代几何造型恰如其分。
客厅角度
在这环境中我怎能不享受...
实木烤漆橱柜,高级灰和暖色仿古砖的协调设计。让冷暖比例更加协调舒服。厨卫功能第一
长辈卧室,素雅安静的搭配,低调的高级灰让人更舒展自在。
特写
一层卫生间,地面一定防滑有层次,地漏的位置前期必须考虑到位,墙面巧克力砖点缀。主体还是浅色墙砖。
楼梯间大鱼海棠装饰画、新中式边柜、绿松石吊灯。一切都是那么的应景!
喵星人视角哦!我爬...
墙面的灰镜既当作瑜伽室镜面也在装饰上起到了增大空间感的作用。
楼梯间平台用作瑜伽空间,融入了嵌入式储物。夏天吊扇灯的作用就凸显了,大多人还是不愿意长时间吹空调的。
孩子上大学,目前是放假回来住,整体家具及搭配上包容性还是比较强的,将来孩子有自己的软装喜好也好调整搭配,设计师随时给你调整意见。
卧室台灯特写,氛围感爆棚。
楼上卫生间,以晚上使用为主,色调搭配上做的更温暖有层次一些。能用双盆谁选单盆啊。镜柜在生活中很重要,你家浴室柜附近是否堆满了,找不见...
主卧还是以木色家具搭配灰紫色背景为基调,融入自然元素的软装。
主卧床头特写,细节谁拍都好看,所以我作品一般很少放局部特写,那基本不体现功力。
有空间为何不做出来个衣帽间,这多痛快!
客服
消息
收藏
下载
最近






















