查看完整案例


收藏

下载
设计师根据跟他们接触以来的认知,对于房子的定位除了满足业主的童趣要求,还要考虑怎样实现童心且又不会落入幼稚(毕竟是成年人和长期考虑) 是最大的权衡点。开始围绕色彩性、浪漫元素、几何图形几个关键词进行推敲,用符合空间的现代手法,一步一步细化出来双方都认可的成果。
现代手法来打造这样一个平层空间,所有尺度都舒服的情况下,加入一点法式线条来打破现代风格的硬朗,又通过颜色的搭配,甚至到选画的内容来主要烘托童趣感,但是彩色空间容易燥乱和没层次,所以在墙面和顶面都采用了不同程度的灰色系来压下去。
入户玄关
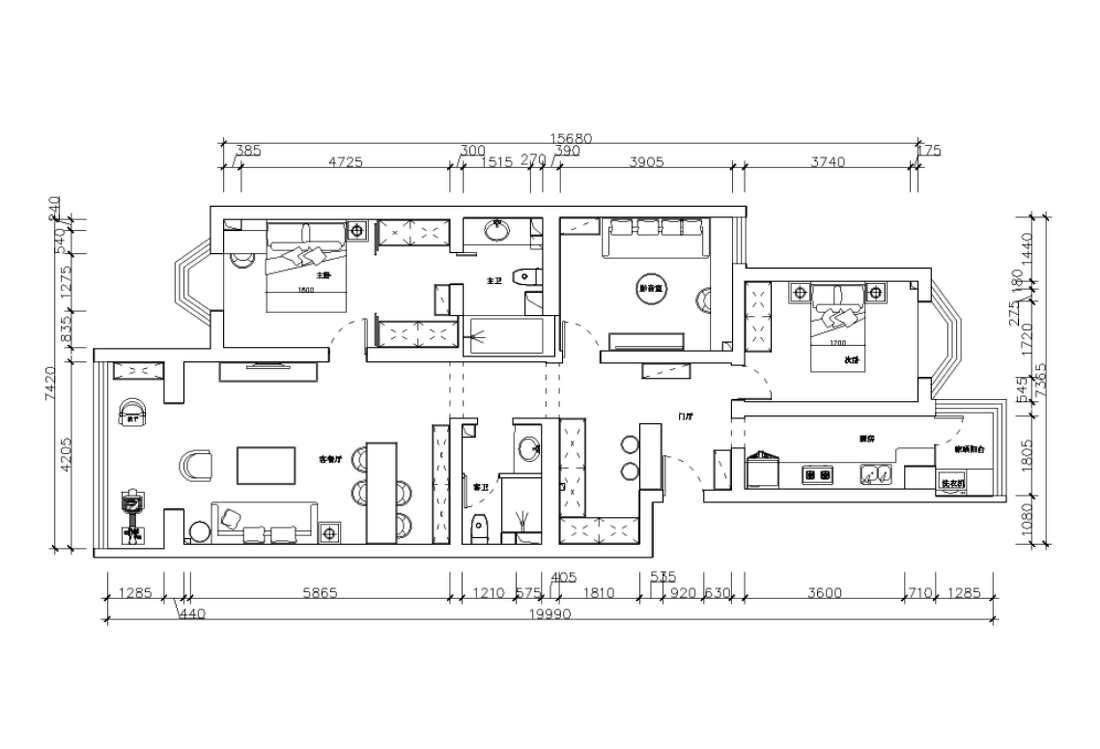
原户型主卧的卫生间很小,从舒适度的角度考虑,我们改变了门洞方向,将廊道空间纳入主卫。卧室还设计了一个步入式衣帽间。
客服
消息
收藏
下载
最近











