查看完整案例


收藏

下载
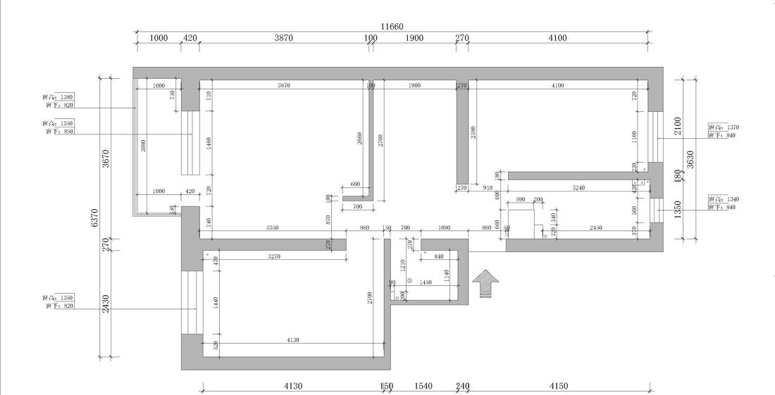
原始户型,北京很老的红砖房
原本的房屋状况
很幸运还能找到这张照片,业主的设想,看得出来不大的房子业主也费了不少心思
#设计诉求 #小户型
业主发过来的设计诉求,震惊到我了,满满的一张A4纸,大到空间布局,小到牙刷毛巾,业主把全家的生活习惯写了出来,希望能在这不大的空间里满足他们的需求。
(设计师吐血~)
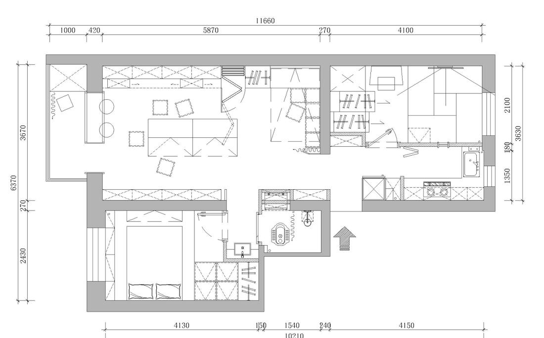
最终平面,一个变化的空间。
客厅没有常规的沙发,取而代之的是两个可变化的多功能桌和十个魔方盒子,整个客厅隐藏了一个活动隔断,需要的时候可以拉出来变成两间卧室,同样里边配备了墨菲床,除了两间卧室和一个墨菲床,第四张床在哪里?十个魔方盒子拼在一起就是我们的第四张床。
主卧室除了一个大的榻榻米床,旁边又增加了一个小榻榻米,为了以后的二孩准备的(甚至可以算是第五张床)。
次卧和厨房之间的墙面开了一个玻璃窗,为的是在大人厨房做饭时,也可以方便照看到客厅或是卧室里玩耍的孩子,保证家长即使炒菜做饭是也可以最大程度观察到孩子的一举一动。
卫生间则改变了原有的进门动线,在原有的门洞放入了两台洗衣机,洗手盆外置,实现了干湿分区。
平时的常规状态
家中晚间休息的极限状态,四房五床一影院,哈哈O(∩_∩)O
可将两个餐桌收起组合一个小书桌,客厅空间更加开阔,顶部是新风系统排布,保证全屋空气质量
因为是六层老楼的最顶户,所以在门口楼道扶手上设计了一个小平台(如图右侧),方便家人开门前可以把手中的物品放到平台上。
进门右侧是洞洞板,根据需要挂放一些小件物品
鞋柜底部留有空隙,不必弯腰方便拖鞋换取,日常穿的高帮鞋可以放入鞋柜,柜门留好了通风孔,保证柜体内的干燥和空气流通
客厅效果图
客厅更开场,除了两侧的储物柜,中间无固定家具,活动区更大,功能变化更丰富。
#小户型 #效果图 #攀岩墙
#餐桌 #餐厅 #客厅 #投影 #家庭影院 #小户型 #变形家具 #装饰柜 #黑板漆 #活动隔断 #隔断
#办公桌 #生活阳台 #纱帘 #原木色
#装饰柜 #原木 #电视柜 #电视背景墙 #空调
男主人的固定办公区也被隐藏在了柜体内,全屋的无线设备也是在此位置
#储物柜 #小户型 #家庭影院 #收纳 #嵌入式收纳 #黑板漆 #简约 #收纳狂魔们的家
#储物柜 #小户型 #家庭影院 #收纳 #嵌入式收纳 #黑板漆 #简约 #收纳狂魔们的家
#储物柜 #小户型 #家庭影院 #收纳 #嵌入式收纳 #黑板漆 #简约 #投影
客厅另外一端,能有一个比较宽敞的孩子活动空间,有点小遗憾的是因为是老楼,红砖间的缝隙砂灰比较松无法固定攀岩钉,所有小朋友的攀岩墙没有实现,取而代之的是一整面的黑板墙,让孩子尽情释放天性。
这也是第三间卧室的位置,PVC活动隔断保证了私密性和透光性。
#书柜 #推拉柜 #吸顶灯 #北欧 #简约 #卧室 #小阳台 #床头背景墙 #客厅 #实木 #地板
#书柜 #推拉柜 #吸顶灯 #北欧 #简约 #卧室 #小阳台 #床头背景墙 #客厅 #实木 #地板 #变形家具
这里就是第四张床的位置,十个魔方盒子拼成的1800*2000的双人床,而这个位置附加了一个家庭影院,还是蛮享受的(ps:还差一个薄床垫)。
#书柜 #白橡木 #小户型 #储蓄
投影对面的柜子,为了最大程度的储物,做成了双层推拉柜,今后的日子慢慢填满
#效果图 #厨房 #面包砖
#施工 #厨房 #红砖墙
厨房与次卧之间开了一扇窗,一方面可以增大采光,更重要的可以在做饭时照看卧室里玩耍的孩子
(PS:卧室的床单可以忽略,哈哈~)
为了让厨房空间最大化,把冰箱挪出了厨房,并增加了冰箱柜,囤的米面可以放在冰箱旁边的柜子里
#小户型 #冰箱 #收纳
#厨房 #橱柜 #小户型 #面包砖
不大的卫生间寸土寸金,还要加入两个洗衣机。
借用原有卫生间门洞和老房墙体厚的特点,利用将近30公分墙厚,顺利的放下了两台洗衣机。
洗手盆被安排到了公共区域,扩大了卫生间面积,也实现了干湿分区
箭头位置为原本卫生间门洞,因为是异形同时也为了壁挂洗衣机的牢固,采用了现浇整体预制结构,底部留有电源和灯带,方便日后扫地机器人使用
造型上半部仍给客厅留了一点橱柜空间,侧面刷上了黑板漆,很实用!
#卧室 #床 #榻榻米 #日式 #小户型 #吸顶灯 #原木色 #橡木 #长臂壁灯 #空调 #暖气 #暖气罩 #婴儿床
主卧室榻榻米旁有一个小的榻榻米,是给未来如果要二孩准备的,在父母的床头方便照看,同时也特意加装了翻折护栏,保证孩子的安全
(PS;这也就是整个家第五张床啦~还有拍照时因为床单过于鲜艳所以后期做了去色处理)
实景照片没有展示出来的点主卧榻榻米上有个飘窗台,两边暖气中间同样可以当个书桌用,关上房门在不影响其他屋的同时在卧室里也可以办公,而打开柜体推拉门,双脚可以自然伸入,保证正常坐姿。
在老人房(次卧)榻榻米上设置了玻璃窗,当然也考虑道理隐私,加设了百叶帘(ps:同样床单后期去了色)。
除了全屋的软硬装设计外,还单独设计了可变化的小型家具。最大可以翻折拼成1200*2400的桌子,和十个魔方盒子,从0~9,每个盒子有一个编号方便查找里边存放的物品。
#收纳用品 #小户型 #折叠家具 #原木 #白橡木 #地板
#收纳用品 #小户型 #折叠家具 #原木 #白橡木 #地板
#收纳用品 #小户型 #折叠家具 #原木 #白橡木 #地板
#小户型 #折叠家具 #餐桌 #原木色 #嵌入式收纳
#小户型 #折叠家具 #餐桌 #原木色 #嵌入式收纳
#小户型 #折叠家具 #餐桌 #原木色 #嵌入式收纳
客服
消息
收藏
下载
最近






















































