查看完整案例


收藏

下载
原始结构图
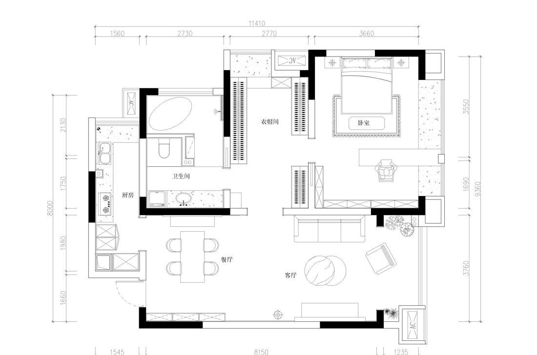
平面布置图
客厅展示
利用家具做出了空间隔断,
增加了空间的整体性;
打开家门的那一刻,除了身体的放松,
木饰面的运用也让人有了心的回归。
屋主人特别讲究气质与韵味,
现代的风格中混搭上一丝木结构,
使得整个室内宁静而简约。
餐厅展示
没有过多的饰品修饰,
原木的餐桌与餐椅通过自身的材质辉映出屋主的品质。
充满浓郁东方风情的木格栅也被巧妙的应用到空间里,
较好地处理了人与空间的关系。
在追求空间通透性和视觉连续性的同时,
又形成了必要的隔断。
厨房展示
卫生间展示
卫生间是一个特殊的空间,不需要过于浮华的装饰,
但却又需要易于清洁和清爽。
干湿分离的空间,让泡澡成了回到家中最放松的时刻。
卧室展示
整个卧室充满文艺气息,条纹、白墙、原木柜,
处处都袒露出木材的原始美感,有一种接近自然的亲和力。
客服
消息
收藏
下载
最近












































