查看完整案例


收藏

下载
客厅挺大的,但餐厅因为厨房占用了部分显得有点拥挤,业主还需要摆放一个标准钢琴,总担心空间利用不好。
把厨房跟餐厅墙拆了做了推拉窗,厨房门也改造走廊方向,厨房变得通透明亮操作台也增加了三米左右,餐厅的空间感也变大了,小小的改动就把同样的家具摆放位置显大了。
大阳台做了断桥铝围蔽,整齐明亮。室外大面积的景观让房子的主人生活更舒心。
客厅做了无主灯设计,没有了繁琐的吊灯,一点不影响空间的整体感。
量房照片。
厨房门的改位,增加了橱柜的使用率。
入户花园也做了断桥铝围蔽,大面积的玻璃有点浪费,就把这里利用起来做了鞋柜换鞋凳收纳柜,甚至还把原来的管道也遮挡起来了。
充分利用了入户空间做成了洗晒区。
主卧。
主卧改了主卫门对床的问题,其它就没有做太大的改动,做了一级护墙板搭配大床就可以了。
上一手房东因为主卫门对着床,衣柜也不好摆放,现在整板墙做了衣柜,床尾还做了地柜和书桌,方便又好用还装饰了空间。
主卫,因为调整了方向还利用了原来主卫门的墙厚暗装了壁挂马桶。
儿童房,小朋友是业主的小宝贝小公主,做了藕粉色的墙漆,既不显得太幼稚又可以满足未来几年成长的审美。
聪明好学的小朋友,还是要满足学业的需求,做了整排吊柜可以更好满足后面学习的使用。书桌床头柜的连体设计也免去采购的麻烦。
公卫改了两分离形式,还利用新砌的隔断做了壁龛满足洗漱的功能需要。
这次的镜子没有做镜柜而是用了长城板配搭圆镜子,原木自然风效果满满。
两分离的卫生间空间的确小了,所以采用了长虹玻璃遮挡门。
家里长辈偶尔要来小住,看看小朋友,房间也做的简单舒适,榻榻米也可以在没人住的时候收拾整齐。
用了一点点的浅雾霾绿,把空间一下子装扮起来了。
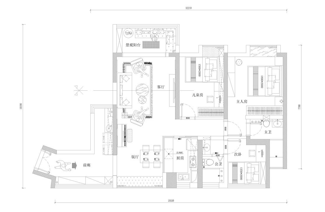
原始平面图
新平面布局图
客服
消息
收藏
下载
最近




































