查看完整案例


收藏

下载
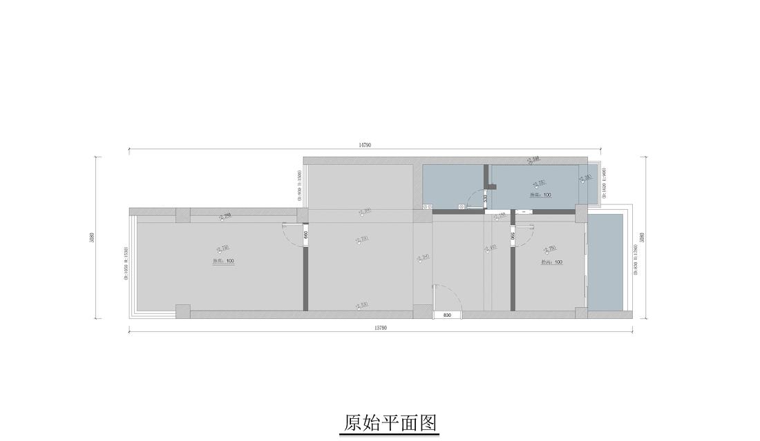
房子已经有二十年以上的楼龄了,翻新不在于大拆大改,重点在把现代的生活习惯融入新的设计中,拆了鞋柜让客餐厅连在一起空间感大增。
量房照片。以前的装修设计,鞋柜屏风,拱形木门洞都是岁月的见证。
新做的定制电视墙。
两夫妻都有一些收藏的习惯,装饰柜都装了玻璃门。
客餐厅因为原来过多的装饰让空间显得狭小,重新设计下不做多余的装饰,把软装搭配好就可以。
量房照片。
之前的餐厅因为鞋柜做的屏风把空间分成两半,现在把鞋柜改到一边的墙上,两个空间连在一起通风和采光都更好了。
量房照片。
原来的卫生间狭小,厨房空间就更加混乱,通过设计把卫生间做成两分离,卫生间终于可以有干湿分离了。
原来狭小的厨房布局也有问题,新的设计把墙往次卧移动,也重新的调整了次卧的布局,两个空间都获得了优化和使用率的提升。
量房照片。
新的设计把厨房的地柜从原来的3米变成4.5米。还留下这面墙可以以后增加吊柜。
洗手台柜做在了卫生间外面,大大便利了业主的起居。
主卧。
业主希望增加收纳,在原来衣柜的基础上床尾多加了电视柜收纳柜。
主卧外面原来是阳台,现在用来做了男主的工作空间。
量房照片。
整面墙的电视柜收纳柜,还设计了位置摆放心爱的乐高车模和机动战士模型。
次卧。
次卧暂时没人使用,功能以家庭多余杂物的收纳为主。不过也顺便设计了一个书桌区,方便以后小朋友的使用。
平面布局图
原始平面图
客服
消息
收藏
下载
最近




























