查看完整案例


收藏

下载
客厅是跃式设计,采用了白色大理石岩板做背景,因为业主家里有两个小朋友,希望新家是轻松温馨的,所以采用了橡木板材和房间门。
客厅比较长,但又给步级占了一部分,我们就利用这规划了一个儿童活动区,让两个小朋友可以一边玩耍一边学习,业主一家人乐也融融。
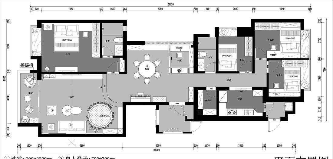
现在已经不多这种跃式的大平层单位,跃式主要问题在客餐厅的高低部分,解决了空间的联系,效果反而更加出彩。
客厅的角落做了儿童娱乐区,小朋友读书以后也可以改为品茶区等多功能空间。
房子实用面积很高,餐厅面积不少,所以就规划出一个玄关,玄关后面还做了一个书房,一举多得。
原来的餐厅有高低两个窗户,刚好利用分隔餐厅和书房。
利用餐厅的过道摆放了小朋友的钢琴,极大的善用了空间。
把原来的一个利用率不高的餐厅重新规划出玄关、餐厅、书房、钢琴区、鞋柜,既实用又美观。
男主功能齐备的工作室。
主卧,以简单舒适为主。
没有多余的装饰,通过软装的搭配做出效果。
主卧现代时尚。
小朋友成长很快,跟业主沟通好,既要有小女孩的童真又要满足以后读书学习的需要,所以在美观与实用之间平衡好,衣柜书柜书桌一样都没漏。
男孩的房间跟妹妹的想法一样,充分利用了空间又让空间整齐干净。
房间还有一片小白墙,网上买的小屋黑板,可以让两兄妹写写画画,开拓思维。
165㎡的电梯房实用率还是挺高的,也让我充分的发挥了想象力,一次不错的设计历程。
客服
消息
收藏
下载
最近






































