查看完整案例


收藏

下载
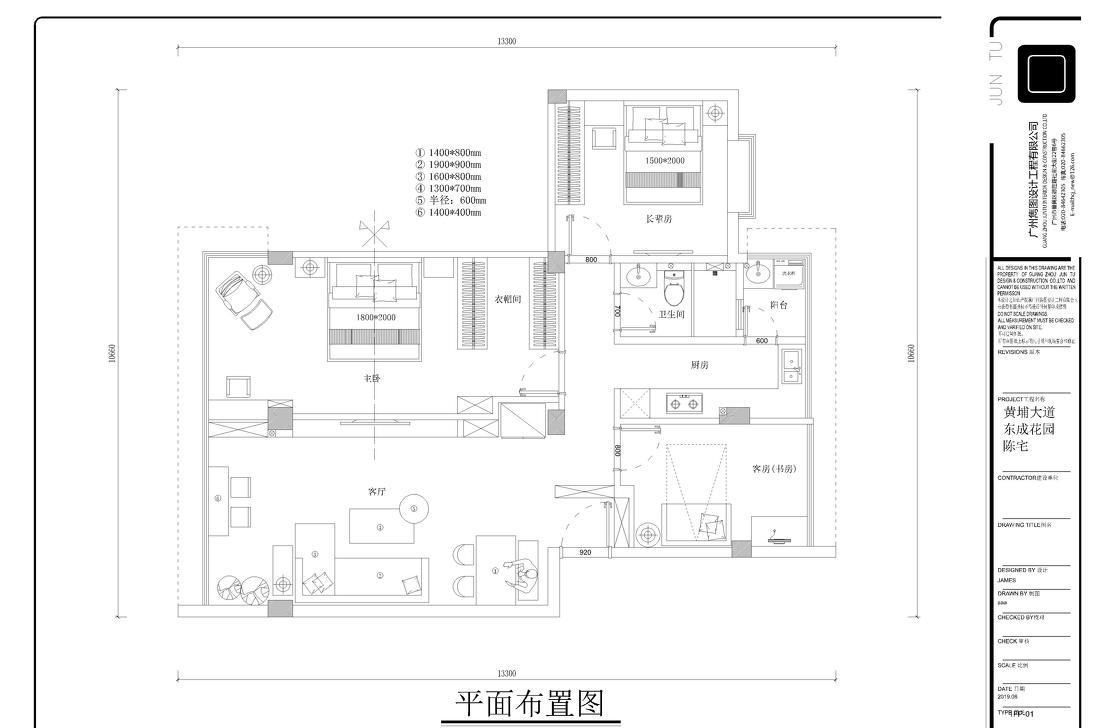
其实客厅还是挺大的,原来客厅跟餐厅分开,餐厅在房子的中间采光又不好,把太多面积浪费在客餐厅是这个户型的最大问题。
新方案我们用鞋柜规划了一个玄关,也开了一条新的通道,合理分配了三个房间和厨卫,。
因为客厅比较长,所以把餐厅跟客厅合并在一起。
原来的阳台外扩,多了一个休闲区域。
餐厅墙做了护墙板跟入户门连成一体,买的长餐椅可以直接利用护墙板做靠背,既省空间墙体又一气呵成。
沙发用了比较少用的豆沙绿色沙发,清新自然。
餐台做卡座或者长餐椅都是一个很好利用空间的方法。
新生代都喜欢用大冰箱,但新规划的厨房要是放了大冰箱剩下的操作空间就不多了,我们把过道旁边的空间利用起来,放下了大的对开门冰箱。
因为在厨房外面规划了带烘干机的洗衣阳台,所以就把景观阳台做了封闭处理,摆上网上买的小吧台,看书喝茶都可以喔!
新的布局主卧还规划出衣帽间,对女业主来说真的意想不到,可以放很多漂亮的衣服了。
新的布局一点不比新楼盘的户型差。
原始平面图
新平面布局
客服
消息
收藏
下载
最近



















