知末
知末
创作上传
VIP
收藏下载
登录 | 注册有礼
知末案例   /   家装空间   /   平层   /   隽图设计-何炽基

竹丝村李宅

2020/12/30 00:00:00
查看完整案例
微信扫一扫
收藏
下载
竹丝村李宅-0
客厅空间不大,合理规划家具摆放是重点。
竹丝村李宅-2
竹丝村李宅-3
客厅采光只能靠厨房,所以做了半封闭式厨房,让尽量多的光线进入。
竹丝村李宅-5
卡座式的用餐区是解决小空间的一个好办法。
竹丝村李宅-7
厨房空间尽量增加收纳和操作空间。
竹丝村李宅-9
冰箱放在过道哪里不占用厨房空间,让厨房有更多的操作位置。
竹丝村李宅-11
竹丝村李宅-12
竹丝村李宅-13
玄关。
竹丝村李宅-15
竹丝村李宅-16
房子买来就是为了小孩子读书,所以做了很多书柜收纳柜。
竹丝村李宅-18
竹丝村李宅-19
竹丝村李宅-20
做的榻榻米,既省空间又让房子整齐舒适。
竹丝村李宅-22
竹丝村李宅-23
主卧。
竹丝村李宅-25
房间有一个弧形转弯位置,利用起来做了窗台和收纳柜。
竹丝村李宅-27
竹丝村李宅-28
竹丝村李宅-29
竹丝村李宅-30
竹丝村李宅-31
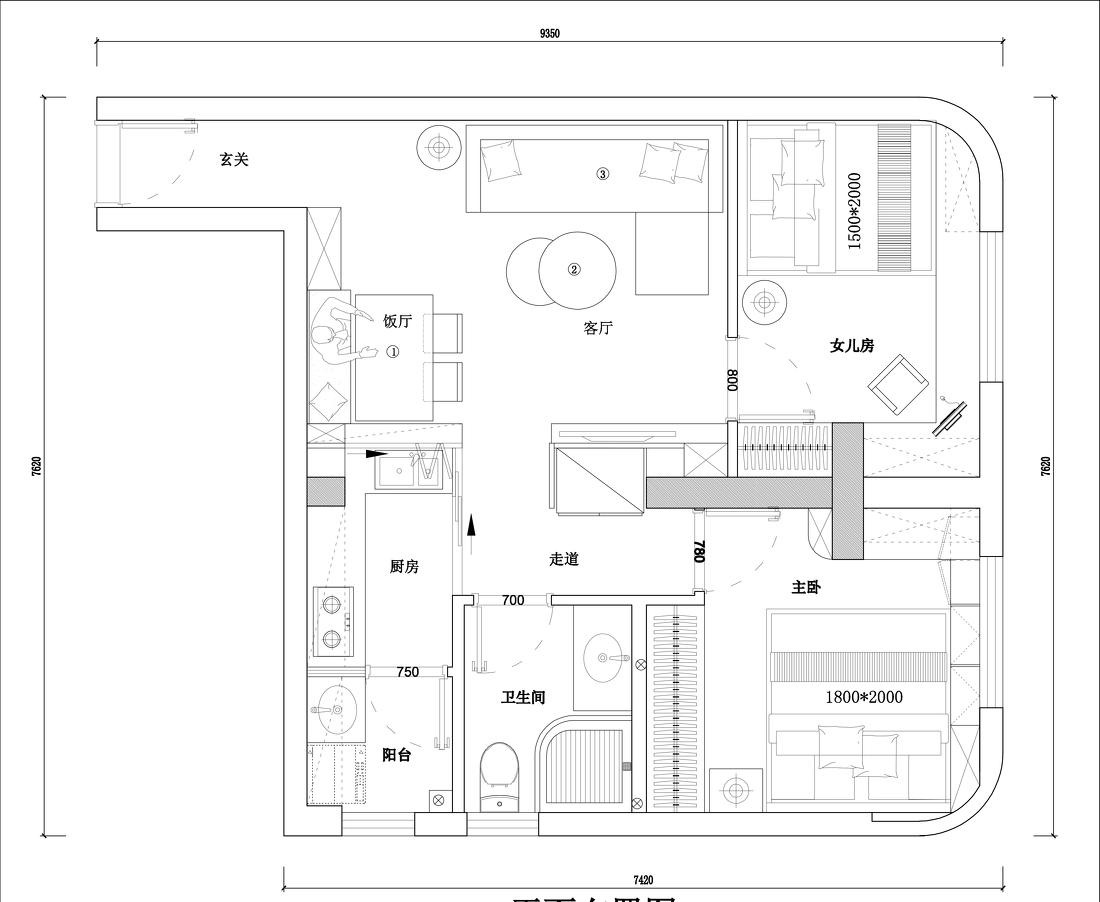
平面布局图
竹丝村李宅-33
原始平面图
南京喵熊网络科技有限公司 苏ICP备18050492号-4知末 © 2018—2020 . All photos and trademark graphics are copyrighted by their owners.增值电信业务经营许可证(ICP)苏B2-20201444苏公网安备 32011302321234号
客服
消息
收藏
下载
最近