查看完整案例


收藏

下载
疫情期间接的项目,60平方需要为6口之家打造4房空间,挑战无处不在!!
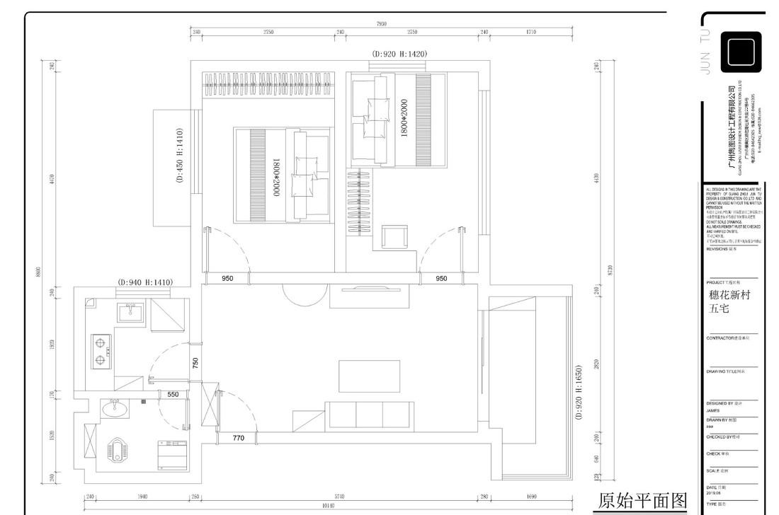
这是房子原来的布局,入户门正对房间门,客厅两侧是房间门导致沙发区和用餐区没办法布置一家人都只能围着茶几吃饭。因为家里两个小朋友也到了入学年龄,6个人生活在60平方两房单位的确太挤,所以就要开始梦想大改造的项目了。
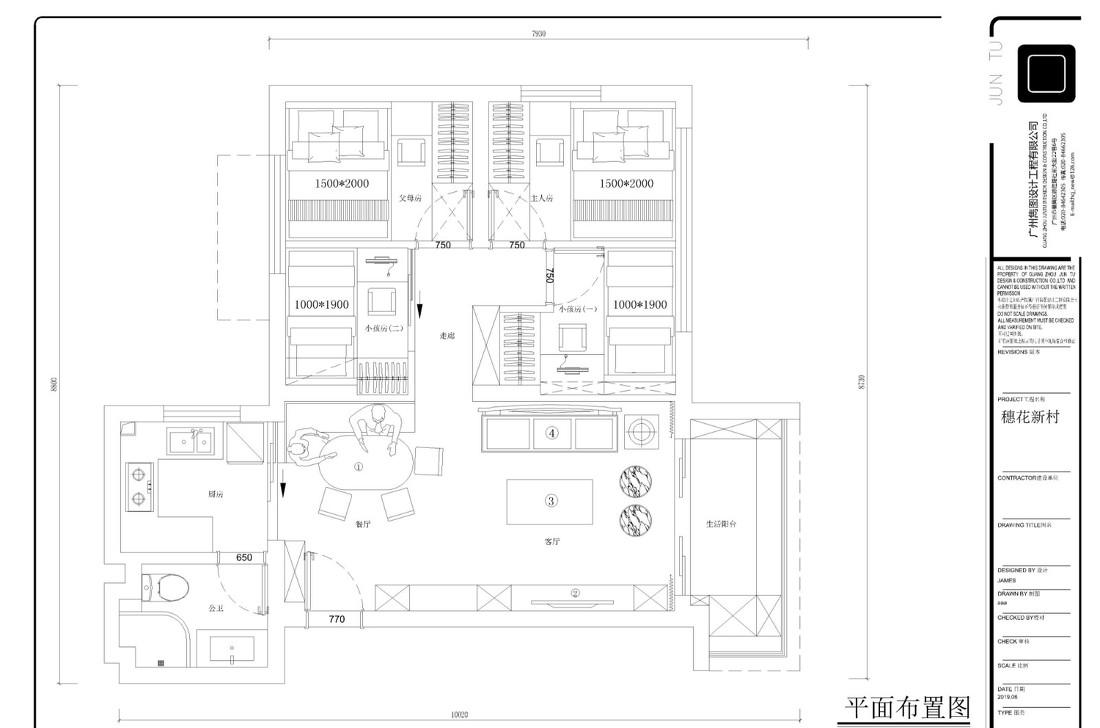
改造方案是在中间开通一条走廊,虽然浪费了3.5平方,但客厅可以分开沙发区和用餐区,生活便利性和舒适性大大提高。在原来两房的位置改造四房尽量不占用客厅空间,三代人都有自己的私密空间。
客厅空间不合理所以东西都只能随意摆放。
中间开通的走廊让客厅更好的利用起来。
爷爷需要保留原来的所有实木家具,设计难度增加不少。
三代6人同堂,给生活造成极大混乱,极其需要超大的收纳空间。
左侧做了整排的电视墙,满足了很大的收纳功能也预留了位置摆放原来的实木博古架,业主还多买了一个博古架。
用餐区采用卡座处理节省了空间也满足6口的用餐的问题(还好餐桌家具可以重新买)
原来房间门做了卡座后的一个装饰区。
充分利用了阳台,洗衣机的位置除了大大增加收纳还有效的遮挡了后面新建的电梯。左侧的收纳柜可以收纳家里很多的杂物。
小儿子的房子面积最小,但利用率趣味性反而是最高。下层是两兄弟的游戏区,墙面还做了整板乐高墙,益智好玩,从房门到墙距离一米七,还可以多睡一个小朋友。上层是睡眠区,通过坐垫-书桌-扶手就可以上去。
虽然小朋友才4岁,但下层也保留了书架空间。
一米七长的书桌,满足了日后上学需要,也有很大的收纳功能。
房间命名为“马里奥的房间”
希望下次见到叔叔不要再叫我“拆房的叔叔”来了!!
下层留了一米的净空,父母也可以陪着小朋友一起看书砌乐高积木。
大儿子的房间就成熟一点了,因为主要游乐区在小房,所以这里就多了很多层架,可以满足读书学习的需要,当然还是童心满满的。
宇航员梦想满满的期待。
童趣和收纳两不误。
床下也是满满的收纳空间。
主卧面积不大,进门就是衣柜,为了增加空间感以素白颜色为主,干净整洁。
女主很重视的梳妆台,镜子后面是封闭了窗户做的化妆品收纳柜。
家里人多,女主需要更多的收纳空间,所以把床升高增加收纳,上下床就要多注意了。
客服
消息
收藏
下载
最近



































