查看完整案例


收藏

下载
本案是一套现代宁静的空间,肌理白与原木色的搭配营造出一种平静的感觉。大量的家具线条流畅,营造出极致的氛围。客餐厅空间一体化,非常引人注目,以营造出大气时尚的空间。
户型改造
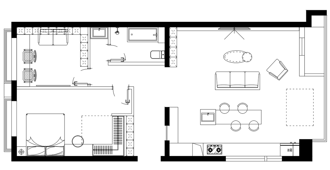
原始户型:
该户型南北通透,户型方正,且称重墙仅有中间位置一堵。户型改造优势也非常好~
面对这样的优势,本着将优势发挥更大,我们做了如下改造。
改造亮点:
1.入户玄关处,将原本主卧凹陷处的侧墙拆除并外移,墙壁两侧做衣帽间与玄关柜,合理均分空间使用。
2.入户右侧厨房位置,拆除厨房外侧墙体,做开放式客餐一体,无限放大空间的使用效果,也使得阳台部分及客厅的光线更优。
3.内移书房墙壁与门洞做齐,扩大卫生间面积。使用上更加方便,也能提升生活品质。
玄关
入户玄关纯白色玄关柜,简洁白色整理一天的好心情。原始厨房门的位置,打造玻璃窗景观效果,下方做储物餐边柜,上方恰好借“光”到玄关位置,做饭的同时也能观察来客情况,一举两得。
餐厅
开放的客餐厅一体化,餐桌与岛台结合。小夫妻两人都有用餐时看电视的习惯,一台电视满足两个生活场景,何乐而不为呢~
打通后的客厅方正舒适,除了原本的超大落地窗,厨房的观景窗也被引入其中。通透感与美感并存。
阳台休闲区
打通餐厅与客厅的设计,为休闲阳台空出大量的空间,在这里,可以是男女主人的健身区域;也可以是未来小宝宝的玩乐区域;或者摆放一个书桌,就是一个视野极佳的办公区域。
客厅
全屋为白色肌理漆+木饰面效果;全屋无主灯设计,背景墙光源融入顶部线性射灯,光源效果科技感满满,使用暖光光源,更显温馨质感。
左侧L型大面积木饰面储物空间以及通铺木色地板,延续浅色系装饰,更加唯美自然。
个性化弧形搭配“掀角儿”灵动设计,让呆板电视面板,更具生机。
床头背景墙采用木饰面结合多处线性光源制造氛围感。
柔软蓬松的床品与顶部弧形的柔美,共同带给睡眠空间的舒适惬意。
主卧结合开放式衣帽间的设计,大面积L型衣柜连接梳妆台,满足女主人的爱美需求。灵活运用空间的同时,主卧空间也不会拥挤。
柜体中间的装饰效果是特地为女主人心爱小物件儿的摆放空间。
书房满足两人的居家办公需求,半开放格储物定制柜,兼顾美观与收纳。
嵌入式沙发座位,是夫妻二人最爱的PS游戏机的对战位。会在对面的墙壁摆放显示器或幕布,是电影或娱乐的最佳场所。
外置洗手盆,保证干湿分离。浴缸与淋浴区分离,使用上便利安全。
嵌入式淋浴设备+壁龛,同色系仿微水泥砖,视觉上更加整洁,打扫也更省心。
客服
消息
收藏
下载
最近














