查看完整案例


收藏

下载
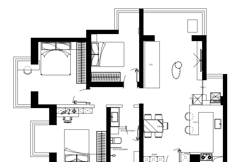
该户型原始户型,虽说不是特别方正。但功能分区明显,三个卧室面积大小平分均匀,且均有采光,光线充足,比较符合刚需的多人家庭。
但也是有一定缺点的:
屋内横梁门洞较多;
均为承重墙,拆改难度大;
卧室与卫生间之间过道面积狭窄;
厨房面积空间受限;
平面改造:
1.三个主要卧室基本不变,而是根据使用人群进行针对性设计:依次设计了主人房(夫妻使用)、儿童房(小朋友长大后及父母暂时居住)、次卧(安装翻板床,可做儿童游戏区或休闲室)
2.拆除卫生间墙体,做半墙处理,给予更多视觉空间,内部用玻璃门做干湿区分化。
3.开放式厨房与岛台结合,厨房空间更大更美观
因此设计核心为
『满足一家三口甚至一家七口的日常生活;符合年轻人喜欢的审美需求;能够照顾到老人和孩子的生活习惯;满足小夫妻对家庭的生活期盼』
基于此,在设计师与业主的持续沟通交流下,结合小夫妻的预算与房屋条件,达到了效果最终的完美呈现~
整体色调为浅色风格,搭配轻奢小元素。空间更加明亮通透,扑面而来的舒适感~
餐厅与客厅位置使用木饰面板材穿插出现,提升氛围感的同时,达到对房屋出现的洞口与过梁进行弱化效果,视觉上更具设计感。
客餐一体,大空间开放式餐厅,餐边柜与玄关柜完美结合,多人聚会不在话下~简约高级的餐桌,搭配造型吊灯,灯光烘托下的食物更加美味~
考虑到男主人身高与房屋层高的因素,没有全屋吊顶,而是采用局部边吊来隐藏空调风管机与厨房管道的目的,并用灯带处理,以达到整体美观的效果
厨房可以是客厅区域的又一升华,大理石岩板搭配暖光灯带,简单中不失奢华,一点点繁复更添生活氛围感,厨房是家人聚集的第二场所,本就是生活与烟火密不可分,何不让做饭也变成一种享受~
开放式厨房与吧台作为“女主人一直以来的梦想”必须要实现,而且要成为焦点~
卧室中景色最美的阳台也得到了最恰当的利用,悬浮梳妆台的台面延伸至墙体,弱化墙体,美感与实用并存!
卧室的设计素雅温馨,使用大地色配色更加耐看,且由于色彩倾向弱,明都低,有助于睡眠休息~
深黑色卫生间提升质感与品位,半隔断的淋浴间空间更大,完美实现“三分离”,多人使用互不干扰~
客服
消息
收藏
下载
最近













