查看完整案例

收藏

下载
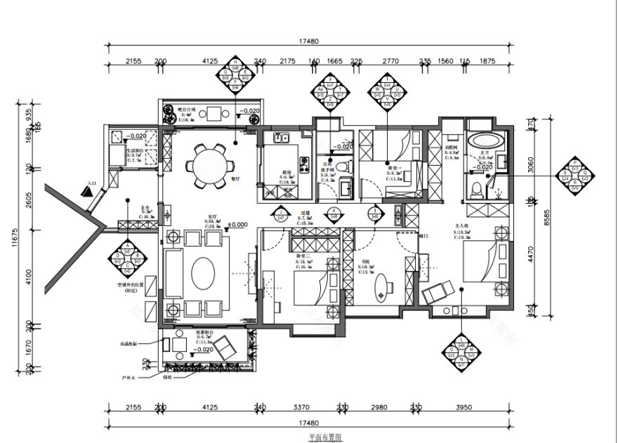
户型优化: 原户型基本满足业主需求,所以户型上整体结构上无太大变动,而是围绕业主“增书房,重储物”做了三个细节上的调整 。
1. 增书房:毋庸置疑是要挪出一个房间当书房用,根据业主的睡前处理工作的习惯,把书房的位置设置在了离主卧最近的地方,直接在将书房纳入主卧的一部分的同时又保持着一门之隔。
2. 重储物:在原始结构图上可看到,过道有点长...而对一个过于方正的房间来说直接增加储物柜便会引出多边角的问题,从结构上去做凹位便是最省空间且最漂亮的处理办法
由于房子朝向、通风、采光各方面条件都比较优越,所以客餐厅部分结构上并没发生变化,这就考究设计细节、尺寸的拿捏,来筑造空间的风格与质感。
例如电视背景墙采用了2500*2560mm人造石装饰,定制的人造石背景两边加以大理石与金属线条的修饰,让看似朴素的背景墙增加了活力。
前面说到业主对材质、色彩有着别样的执着,在整个空间的风格调性把控上充分满足了业主所喜欢的风格——美式轻奢。业主与设计师在挑选家具的时候,客厅主沙发选购了2200mm长的皮质沙发,为提升空间材质的丰富性,其余两张沙发用了绒面,虽然材质不同,却没有一点违和感。家具色彩的选择方面用了女业主挚爱的紫色,让人舒心的搭配便是满眼都是自己所爱。
说完材质与色彩,咱们说些实用的吧。因为主人希望有充足的储存空间,餐厨区相对而言是物品使用率最高的一个空间,于是设计师把储存的重心放在了餐厨区。餐厅旁厅定制了一个1600mm*2350mm的储物柜,除了可放置一些小家电外,还充当了酒柜的功能。
厨房总面积在6平米左右,考虑到冰箱、烤箱等一些常规大电器的融入,厨房采用了L形设计,2175*3065mm的L形厨房保证了洗切区与炒菜区的操作空间,另一边根据业主选购的电器预留1495mm的宽度。
生活阳台最吸引人的设计与做法,但是板材上墙当修饰,这颠覆了常规一味地柜子到顶的做法,还让阳台既保持了独立空间的色彩统一,还自行跳出室内客餐厅空间,增添了新奇感。孰不说这木饰面色彩,也一定要提探头出来的黄铜色水龙头和这极具艺术性的水槽,话说这是水槽是业主淘的最为满意的单品。
公共卫生间原空间规划不合理,墙体将空间一分为二,大概比例2:1,且靠外面的占比为1;这对实现干湿分离极其不利。根据这一情况,设计师将卫生间的墙体打掉,重新分区,调转空间比例占比,有空间足够做干湿分区。
装饰风格则以简约的黑白为主。黑色边框的浴室门、亮黑色的不落地梳妆台与浅灰色的大理石墙面相映衬,空间里加入业主自购的美式浴室柜,在原来现代简约的空间里增添了轻奢感。 淋浴区材质:大理石踏板石,大理石挡水条。
(此图为浴室柜图) 尺寸:1000*550*830mm,镜柜1000*140*700mm 颜色:黑胡桃描金 台面:雅士白中间台下圆盆后挡水
在书房的一侧沿墙壁定制了一面3.2m超大的书柜墙,储藏容量很大,能装下全家人的书籍。2360cm的超大窗台满足了空间的照明需求。业主希望自己进入书房的时候就能有工作的氛围,所以在设计的时候整体空间都比较简洁明亮。
说到主卧,因为女主人很喜欢紫色,所以在主卧就选用了莫兰迪色系的紫色系,看上去温馨又简洁。
业主对于房子呢最大的需求就是希望能够增加储物空间,希望自己能有一个大的衣帽间。主卧的过道处砌了一道新墙,预留了61cm的宽度,与衣帽间柜子齐平,充分利用了直角角落的空间。在尽端设置了梳妆台的位置,自然光线充足,能够满足女主人化妆的照明需求。
主卧的门原先设计在过道的尽头,于风水上而言不太好,而业主希望卧室能够更有私密性,因此在原先门的位置设计了储物柜,既增加了储物空间,又能增加主卧的私密性。而在书房与卧室内增加了一道隐形门,既保证了人们在视觉上的一房一门,又能让主卧显示的更加隐秘,不受打扰,保障了业主的私人空间。
主卫与公卫的风格相差甚远,色调以白色为基调,粉红色就好比女主人柔软的内心,已为人母的她内心还住着一个小公主,在主卧套间更加隐秘的空间得以释放。主卫空间通风采光条件都非常不错,白天不仅有自然光的杀菌消毒,还更加保证了浴室的干燥通风。
(调整前的柜子产品图) 在浴室柜的选择下,原商品图为台上盆,有吊柜设计。
为了和我们空间整体调性做一个匹配与业主喜好我们做了减法。 1. 把台上盆改选用台下盆,使台面更加平整 2. 把吊柜方镜选改为单圆镜,这样一改空间没那么压抑,更加通透简约 3. 尺寸:1000*550*830mm,镜子600*600mm, 颜色:粉色描金 台面:雅士白中间台下方盆后挡水
部分施工软装进场照片: 沙发背景墙扇灰完成
主卫浴室柜进场安装,镜子固定 。
灯具安装。
垃圾清理,打扫卫生。
客服
消息
收藏
下载
最近




































