查看完整案例


收藏

下载
加建的外玄关
内玄关
楼梯间
客厅
客厅
客厅
客厅
楼梯间
楼梯
楼梯
上网游戏区
餐厅
餐厅
厨房
厨房
走廊
书房
书房
卧室
卧室
卧室
卧室
卧室
屋顶花园
屋顶花园
屋顶花园
屋顶花园
屋顶花园
屋顶花园
屋顶花园
屋顶花园
阳光房
阳光房
阳光房
主卧室
主卧室
主卧室
儿童房
儿童房
儿童房
儿童房
儿童房
儿童房
儿童房
健身房
健身房
电视游戏区
健身房
影音室
影音室
儿童活动室
儿童活动室
儿童活动室
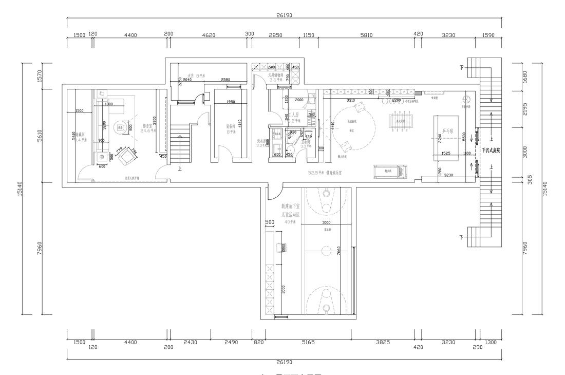
负一层平面图
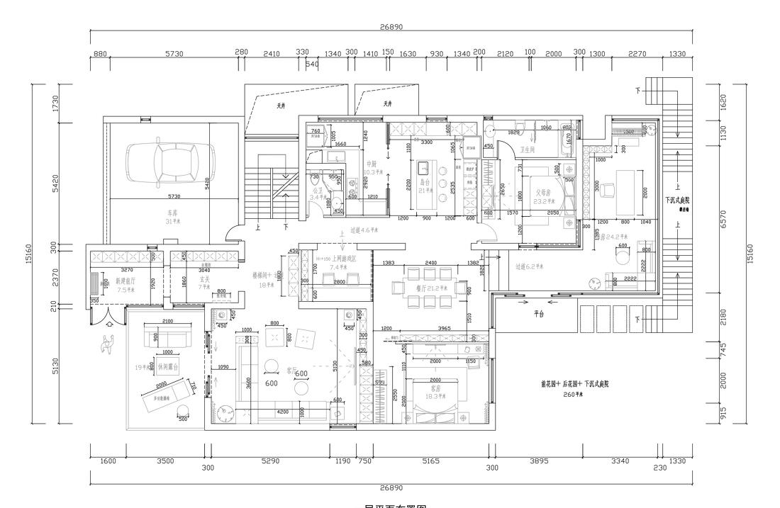
一层平面图
二层平面图
客服
消息
收藏
下载
最近


























































