查看完整案例


收藏

下载
这套320㎡的住宅,以黑、灰、深棕作为底色,将功能与美学转化为精致的细节。多种材质交织,简约精致的室内陈设,让整个空间弥漫着时尚又高级的气息~
深胡桃+水泥灰的搭配,少量的材质与色彩却有丰富的空间层次变化,沙发背景墙的简约配件如同画龙点睛,营造出精致感!
无主灯照明的客厅,使得整体空间显得高雅,左下方的仿真壁炉给深色调的家带来些许暖意,更能使人得到最大的放松,伴随着荧荧烛火感受生活的温暖惬意~
客厅与餐厅采取一体化设计,和谐的色调与简练的空间线条相得益彰。通过抬高餐厨区域地面,从视觉效果和高度差上形成有效的区隔空间。
白色吊顶,深棕色柜体,上浅下深的颜色搭配,将视觉重点集于功能区。高级灰橱柜打造出独有的清冷与沉静氛围,干练、大气不失尊贵。白色餐桌的加入减弱空间灰度的冲击力,使整体感观平和且舒适。
卧室作为一个用于休息的私密区域,它应该具有安静、温馨的特点,摒弃了浮华的装饰,水泥灰的床头背景,在两盏简约铁艺灯的搭配下,相互烘托,魄力十足。
步入式衣帽间,抛弃传统的木柜,以简练的流线,通透感十足的玻璃做衣橱。一体式的结构,彰显都市新贵的格调~
轻盈的玻璃推门与木饰抽屉组合,让悬挂区、叠放区有序分布,玻璃层板灯的加持,让衣物饰品如展示品一般,让人赏心悦目。
浴室依旧是玻璃隔断,洗手台椭圆形的镜子与卫生间的窗户相呼应,超大幅面玻璃与窄边铝框的结合,给空间带来全新的视觉体验。通透的观感,让空间整体性得到极大的延续。
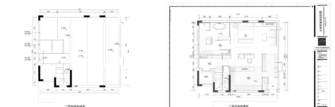
一层平面对比图
二层平面对比图
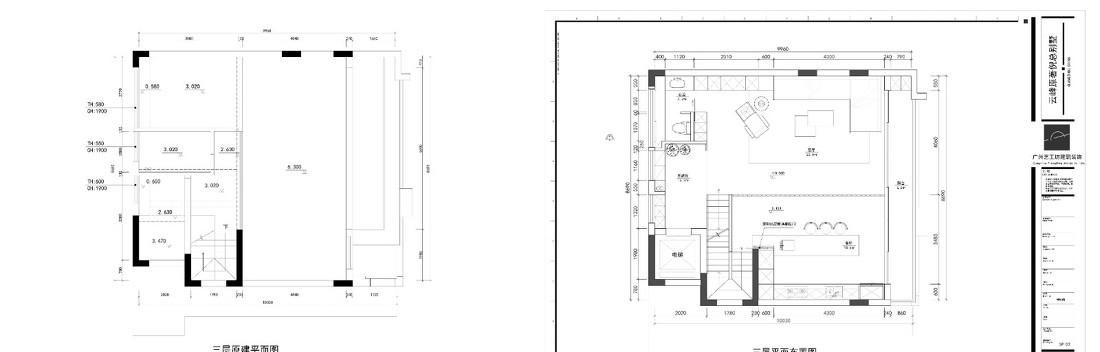
三层平面对比图
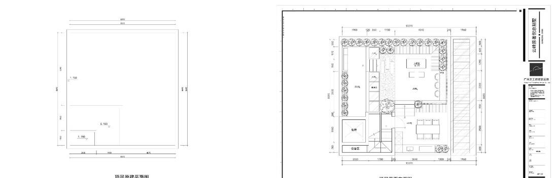
顶层平面对比图
客服
消息
收藏
下载
最近



















