查看完整案例


收藏

下载
ABOUT ROOM
房屋信息
户型 | 五室以上
使用面积 | 220平米
房屋位置 | 广东 广州
装修花费 | 56万元
FOREWORD
说在前面
“北欧风格下的初夏物语,是至纯生活的提炼,亦是未经过滤的晨曦倾洒,生活的味道,如同窗外初樱的味道”。
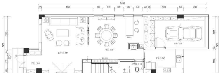
原有的墙面布置,为了使设计更合理,通过打拆非承重墙,将餐厅与客厅一体化,整个空间更具通透感。
精美的艺术画,简练的鞋柜,便是家的起点,卸下一身的城市浮华,轻轻地把心交给美丽的家 终于可以休息一下了。
深色的沙发 裸白的墙面,让空间的理性与柔和气息,在深与浅的碰撞中,完美演绎出北欧的生活形态,干净,自然,文艺 简约却不失格调。
香槟色的屏风,是所有色彩中,最为刚硬的视觉感和色调,高雅中饱含轻奢气息。
在这样的空间里,哪怕只是静静蜷于沙发室椅,任由日光温存,时光也即刻变得美妙情深而小资有趣。
餐厅,简练利落的线条,使空间和谐统一。
你说你爱花,总会在餐桌上小心翼翼地,放置一束清新的百合或玫瑰,顷刻给空间增添些许温暖和灵动气息。
吧台区,窗外的阳光在不经意间坠落,一室的清辉便浮动起来。
黑(gu) 桃(dian)木与大(xian)理(dai)石,沉稳时尚、典雅别致。
你说最美好的时光是,约三五知己,在吧台上,调制一杯酸酸甜甜的Margarita鸡尾,或冲一壶芳醇的咖啡 好不慵懒与惬意。
Johnny说过“细节最能打动人” 。
细心发现楼梯边设有感应灯,每碰触便会照亮阶梯,在阴天亦或夜晚无疑是给老人和小孩 安全的保障,也让空间增添了些许趣味。
与业主再见时,室内已完工一段时间了。他们亦为这新家添置了许多物品,为了保护业主隐私,小编脸皮薄没好意思开门拍照️️,顽皮地附上几张效果图。
主卧,干净透白的墙面、简约大气的原木家居。整个空间自然舒适, 是忙碌一天后的一丝静谧 也是美梦的开始。
次卧,扑面而来的北欧气息,自然木色与精致灰色的完美融合。简约、自然、富有质感,恨不得到床上打几个滚。
儿童房,小清新可爱的几何图案墙纸,小蜜蜂造型吊灯,将光线一层一层洒下来。暖萌,又干净 充满了童趣与幻想。
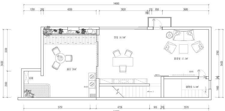
三楼茶室,原有的墙面布置,是两个不同的狭小空间,根据客户需求,打拆非承重墙,使空间更通透与宽敞。
茶室,与一层空间轻奢风格不同的是,朴素的茶室空间,体现的是一种简单。
真正的平静,偶寄闲情,暂忘尘嚣,把平淡的日子过成超然。
客服
消息
收藏
下载
最近


















