查看完整案例


收藏

下载
ABOUT ROOM
房屋信息
户型
三室
使用面积
184平米
房屋位置
广东 广州
装修花费
45万元
FOREWORD
说在前面
你可曾想过, 什么样的房子会让你一见倾心? 是面面俱到的实用小家; 还是美到不可方物午后花房? 让人心动的理由或许不用太 [ 正经 ] : 一扇在清晨用阳光将我们吻醒的窗, 一束在深夜依旧予以相伴的暖光... 撩动心弦, 只要满足我们心底的 [ 刚刚好 ]。
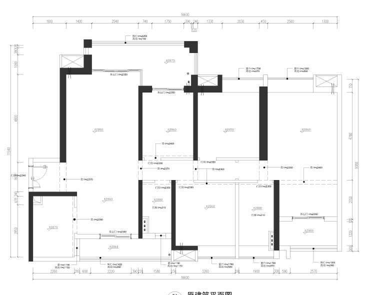
户型占地面积虽较大, 但承重墙较多。
因此布局上很难出现大的改变, 要增加房子通透感只能透过对非承重墙进行的打拆实现。
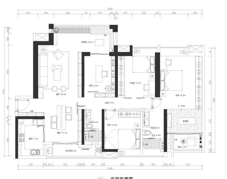
我们将南阳台设置成室内阳台,与客厅、餐厅连为一体, 并避开承重墙。
将【阳台—书房—过道】打通, 以滚轴门作为间隔, 在不改变层高的情况下增加了室内空间的通透性。 公卫也设计成开放式卫生间, 打破了过道的单一感。
这是女主人Titi随手拍的一张照片, 大大的黑板墙满足了孩子的奇思妙想, 也成了家中的【备忘录】。
左边是厨房,右边便是玄关, 有限的空间也能创造无限的想法。
沙发的混搭是Titi的想法, 她说,想和家人在一起做些有意思的事情。
于是椅子与沙发的搭配似乎被赋予了 更有趣的[使命], ——美,却也饱含情趣。
家的温馨,便是这般简简单单。
Titi爱看书,先生爱在小憩时看看电视。
便将电视墙与大书柜相结合, 避开层高的压缩,也避开繁杂刻意的装饰, 实用而美, 也让房子看起来更通透,更让人更宁静。
对女主人来说,厨房总是关键。 大大的台面,干净的配色, 比任何华丽都来得重要一些。
素,是厨房的本色; 你,才是[它]的填色笔。 (这张也是Titi的随手拍哦~)
开放式餐厅与客厅相通, 设置了与电视墙一样的原木格子,
大餐桌、还有储物空间, 收纳,也成了一件美差。
宽敞的餐桌,家庭聚会、朋友探访也有足够的空间容纳。
开放式卫生间,是经典的INS极简风,
原木 + 大理石的搭配,干净又明朗。
淋浴区与洗漱区的离开设计, 让卫生间变得更具可用性, 长出了叶子的浴帘,当个网红背景墙也不过分~
一抹鲜明的黄,让房子显得更活跃。
穿过走廊, 尽头便是Titi的卧房。 比起大大的客厅, Titi的卧室更素雅了些。
大面积的灰蓝色块搭配, 生出了一股油然的愉悦。
角落的灯与小书桌, 大概也陪伴了家人很多个阅读的夜晚。
轻纱飘窗,木色的床。
这间客房说是别致的民宿也丝毫不为过, 大概,Titi也想把这份轻松感, 带给每一位来家里的人吧。
南阳台的[小花房] 的右边,是家里的书房, 有孩子学习的书桌, 有妈妈读书的大沙发, 还有爸爸最心爱的小鱼缸。
左边阳台、右边过廊, 这个通透的一体区域, 也在满足孩子的成长。
比起饱和的色块搭配, Titi希望孩子房温馨些,也简单些。
床头的木色收纳柜搭配彩色的塑料抽屉, 减少了孩子玩闹时受伤的可能性, 也为房间增添了几分趣味。
记得Titi说过, 想要[有茶有花]。
再见时, 为她而设的室内大阳台, 竟已成了个令人沉醉的小花房。
白天尽情沐浴阳光,感受自然的温度。
泡一壶茶, 品一味甘。
与爱人共度的悠闲午后, 大概就是这个样子的吧?
客服
消息
收藏
下载
最近


























