查看完整案例


收藏

下载
整个过道就像一个艺术长廊,墙面和顶上的灯带交织在一起,黑白相间的装饰镜设计,避免了普通镜子造成强反射带来的不适感,同时视觉仍保留扩展空间的效果;过道尽头菱形门洞的设计也相呼应。
考虑到老人的年龄,“小诸葛”专门在进门处增添换鞋凳的功能和扶手等适老化设计,进一步深化了玄关的功能。
▲客餐厅+厨房
厨房整个大变样,13平米的开放式厨房,客餐厅一体,打掉储物间的墙之后,采光更好,储物更多,空间更合理化。
另外,女儿一直想要的可以放钢琴的位置也有了着落。
▲主
原来的主卧一分为二,里屋是女儿的房间,外屋是夫妻二人的卧室,“小诸葛”将阳台处的薄垛拆除,阳台纳入主卧,整个主卧的视野变得更加开阔,墙面油菜花色的涂料为整个空间增添灵动性。
▲女儿房
改造之前女儿一直跟奶奶挤在一张床上,改造之后女儿有了独立的空间,满足了女儿学习,生活和休憩的各项需求。
▲老人房
“小诸葛”在24小时体验过程中,决定把原有厨房改成老人房,单人床,大衣柜,写字台,一应俱全。
推开黑色的移门,是一个小阳台,洗衣机安置在了这里;原有厨房有很多管道,设计师通过柜体的设计将他们隐藏起来,保证了老人的安全;考虑到老年人冬天怕冷,移门的设计能让老人房冬天更保暖。
卫生间整个细节设计上,一改往日墙砖和地砖统一的铺贴方式,马桶上方选择了花色墙砖进行过渡,洗漱台上方的墙面用蓝色点缀。
▲房屋信息
坐标:北京 花园闸北里
户型:两室一厅
使用面积:43平
设计:文君设计工作室
风格:现代简约
项目造价:30万
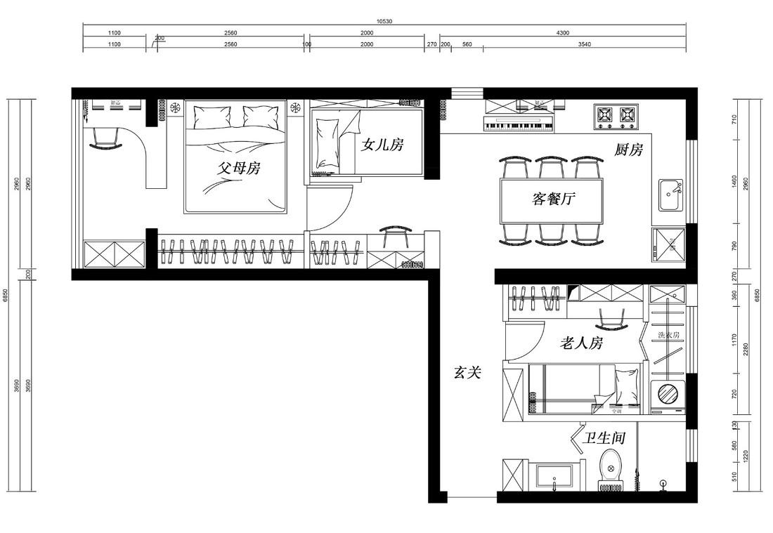
第二套同样也是最原始的“吹风机”户型,考虑到姐弟六人的大家庭聚会需求,这次我们的“小诸葛”乾坤大挪移,将次卧和原厨房对调,设计出13平超大开放式厨房。
▲原始结构图
▲改造后的平面布置
设计亮点:
①利用入户空间来增加卫生间的使用面积,是卫生间做到二分离,同时有了淋浴间。
②将原厨房位置改为老人房和洗衣晾晒区, 满足了老人安静,起夜方便等生活习惯。
③将厨房移位,重新整合餐厨空间,开放式的格局让空间更大更舒适。
④将大卧室一分为二,一半作为女儿房,一半作为夫妻二人居住空间。
▲过道/玄关
客服
消息
收藏
下载
最近















