查看完整案例


收藏

下载
原有厨房和储物间隔墙打掉后,整个空间不止采光有了优化,而且厨房面积扩大了两倍;“小诸葛”考虑到空间的局限性,为了不浪费每一寸空间,同时设计了可容纳多人聚餐的客餐厅。
灯光的使用也很讲究,餐桌上方采用磁吸灯,进门处采用黄金分割灯光做点缀,打破一整面大白墙的单调。
▲老人房
原来老人睡上下铺,行动十分不便,很危险;改造以后,拥有足够储物的同时设计师在有限的空间里为老人设计了一张1.2米的书桌,可以用来看书和梳妆,老人终于有自己的独处空间了。
▲儿童房
“小诸葛”专门为龙凤胎宝宝设计的空间,根据两个宝宝还小爱爬的特点设计了床是树屋造型,悬空的设计趣味十足;细心的你会发现,黑板墙其实是一个可以移动的楼梯;由于他们还小,住在爸爸妈妈隔壁,方便夫妻两随时照看。
▲父母房
父母想把更多的空间留给孩子,因此设计师特意为他们考虑了榻榻米这种去床化的设计;推拉门可以把空间一分为二。
▲卫生间
原来卫生间很小,改造以后,居然实现了马桶间,淋浴间,和洗手盆的三分离设计。
寻找舒适与安心之间的平衡,是设计者永恒不变的考题,足以改变生活的设计绝不止美观那么简单,毕竟对于家来说,实用才是真谛。
通过点、线、面三种因素的完美结合,缔造无可比拟的视觉观感,深零始终坚持,以深入人心、以人为本的设计手法,让居者在体验美好家居环境的同时,也能得到最大程度的放松与愉悦。
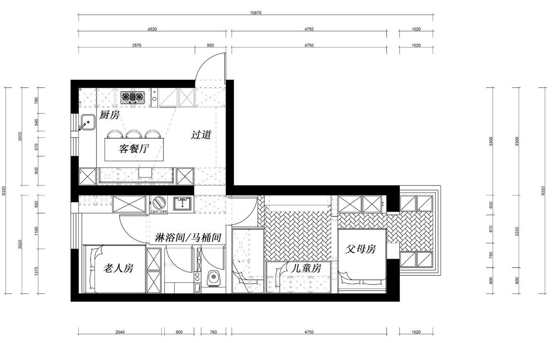
▲改造后的平面布置图
设计亮点:
①改造前,他们家没有客厅,改造后将厨房与储物间打通,进门处设计客餐厅和厨房开放式的格局,使入户空间变得开阔明亮 。
②借助主卧室面积来增加卫生间的使用空间,淋浴和马桶和洗手盆实现了三分离,让业主以后的生活更快更方便。
③将原主卧的大空间一分为二,大半部分作为龙凤胎的休息、玩耍区域,另一部分则作为夫妻二人的卧室。
▲客餐厅+厨房
客服
消息
收藏
下载
最近














