查看完整案例


收藏

下载
由于一层连着花园,且功能为会所,所以色彩和格调都是以灰和褐色为主,方便大家接受,房顶上的吊环,将来女主人会在此与友人一起练习空中瑜伽,所以预埋了顶面吊环。
灰色与褐色的搭配,高档而大气,会所的功能全部体现的同时,彰显主人品味,
一层有单独的大门,方便停车后直接回家,或者客人进到会所的第一感受。
这个是一层会所的功能体现,会当作一个会议室,直播间,与家庭会议的空间,背后的假发展示透露了主人的职业,男女主人是自主创业,做外贸生意的,所以有一些演示用的假发。
二层客厅,这一层的区域主要是供两个可爱的小朋友玩耍和家人吃饭休息的区域,我们对于此次设计的规划取消了电视与传统的沙发,用有趣的阶梯教室形式,引导小朋友多看书,少看电视,
二层玄关,这层的关键是自己家人用,线条柔和,品味体现淋漓尽致。
楼梯间空间很狭窄,为了扩展空间及使用安全性,楼梯扶手及踏步都用了踏步灯带。
家庭花园,为了区分两侧风格,中间的用意业主很满意。
花园及鱼池,家人及客人享受美好户外生活的好地方。
儿童游乐区是每个家庭最需要的地方。
一层平面图
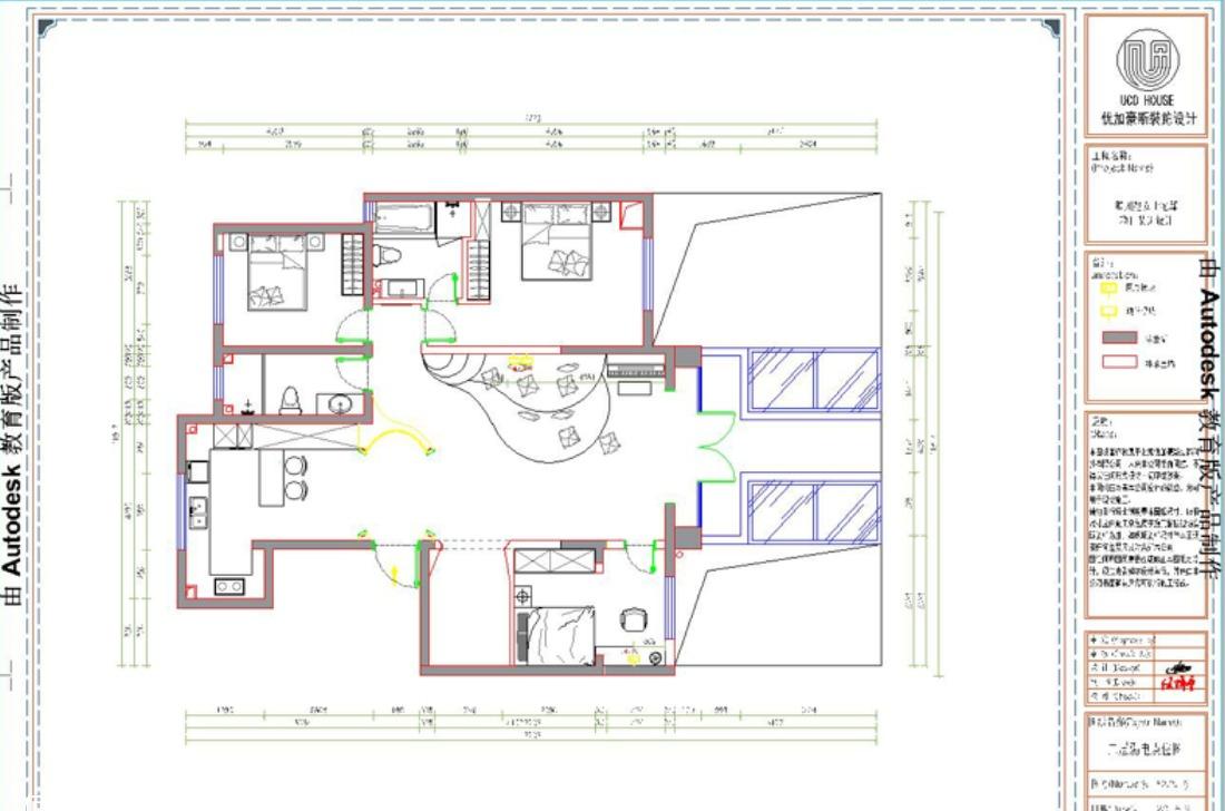
二层平面图
第一次与客户见面沟通的现场。
原始结构
原始结构
原始结构
客服
消息
收藏
下载
最近


















