查看完整案例


收藏

下载
灰绿色的墙面为主点缀了贯穿整屋的粉和米色,与黑色的餐边柜营造的沉稳气氛形成反差,为空间注入更多轻盈明亮。
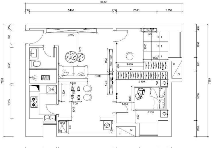
一字型玄关,进门处左手边是现代化玄关柜,下方预留放鞋区域,往前便是沙发休息区域
整个空间按照屋主的生活场景及动线来塑造,打破传统家宅空间。餐桌做成了卡座形式,可同时容纳多人就餐。卡座下方也具备储物功能,卡座背面是厨房,客厅没有留电视机。做了一排储物柜,也是客厅的视觉中心。
磁性漆黑板墙颜色和客厅背景色一致,也是设计的一大亮点。
沙发对面做了定制柜,取消了电视,将更多空间用来储物。
黑色的吊灯洒下暖黄色的灯光,感到温暖治愈。
自然的化身墨绿色,深沉内敛,又高贵华丽,与亮白色系搭配,对比强烈,舒缓了墨绿的暗色,空间优雅明快。主卧显得复古,宁静,舒适
简约的白色床头柜搭配装饰花,整体营造高雅自然的清爽氛围,让人赏心悦目。
床两头是定制顶天立地式衣柜,一边开放式台面摆放书籍和小物件,另一边封闭柜用来储物,空间融入少许粉色的点缀,营造干净温柔的空间氛围。
儿童房兼具书房,集工作,休闲,学习为一体的空间,整体布局有条不絮,风格简洁优雅,美观与实用性共存。
客服
消息
收藏
下载
最近























