查看完整案例


收藏

下载
一楼平面布局图
空间呈现温暖悠雅的美式风情,门厅过度,顶上玛瑙吊灯点燃屋主艺术气息。走进公共领域,可迎接大片落地采光,整体空间显得寛光明亮。 餐厨空间中,天花板高度拿捏精确,聪明的隐藏了空间横梁问题,厨房则以蓝色主调打造浪漫空间感,餐厅外花园特地打造一个户外餐区,让人在家也一样在度假。 一个物件、一幅画、营造出低调奢华的生活追求和质感。设计师硬装上强调了简约的处理态度,美好的比例、丰富的装饰性,涵盖多元材质的搭配组合。 让空间回归本我,一楼沉稳大气且律动感;二楼主卧室淡雅温暖;起居室则是女主的最爱空间,二个撞色慵懒的沙发,看书、品酒、和孩子在软木地板上玩游戏,生活本是如此滋味。三楼的房间,是大宝和大大宝,颜色是他们喜欢的主题,层高的阁楼里,亦是玩耍和摆放玩具好的好去处。 庭院,是别墅最重要的空间,大面积的硬化地表,小小孩需要玩耍,也可以开Party。为了花,为了草,时间都静下来,只为等待美好年华。
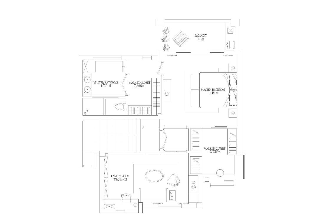
二楼平面布局图
三楼平面布局图
庭院
庭院
庭院
入户顶面
门厅
厨房
二楼起居室
二楼主卧室
二楼主卧室
二楼女士衣帽间
三楼男孩房
三楼男孩房
三楼女孩房
三楼女孩房
三楼女孩房
客服
消息
收藏
下载
最近


























