查看完整案例


收藏

下载
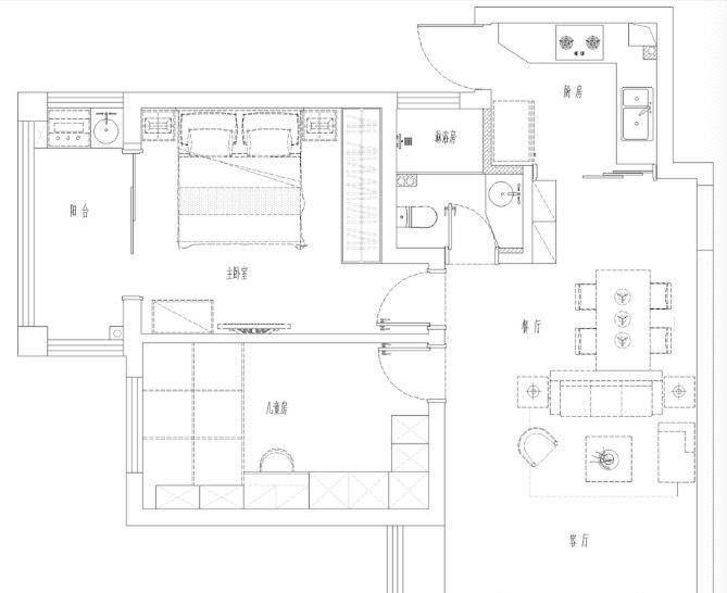
次卧为将来的小孩房,采用了榻榻米造型的设计,定制了连体的书桌和衣柜。最大程度上节省了空间,又增加了收纳储物的能力。小孩将来看书、做作业、休息都可以在这里完成。
餐厅空间不是很大,所以设计上用沙发作为客厅和餐厅的隔断,在视觉上让餐客厅空间融为一体,却在功能上又独自分开。安放的六人位,足够一家四口的聚餐,共享家庭的欢乐。
厨房采用 L 型橱柜设计,一端采用异型延伸,扩展了与冰箱之间的空间,同时留出去户外吸烟室的道路,曲径通幽,让厨房别有一番趣味。
吸烟室,合理利用了开发商赠送的空间。给爱吸烟的父亲的一个私人空间,同时也让烟味远离其他家庭成员。
客厅以白色为基础色调,风格显得明亮、纯洁。电视背景墙部分以深蓝花纹为主,搭配点缀飘窗窗帘的蓝色,起到跳跃眼球的功效。在设计上,亮色只能作为点缀提亮整个空间,不宜过多或过于张扬。
卫生间门型采用长虹玻璃折叠门设计,开合空间不大,提高了卫生间室内空间的利用率。洗手池台面同样也做了倒脚处理,方便进出。灰白色墙地砖营造出悠闲,宽松的氛围。
玄关采用矮柜加装饰画的组合,一进门就能给人以温馨的感觉。矮柜同时兼具着收纳功能,平时进出门的琐碎物品,也可以放置在抽屉里,不至于凌乱。
阳台水龙头为万向调节水龙头,方便小物件的清洗。定制的洗衣柜、收纳盒也完美地利用了每一寸的空间。
主卧以现代亮色调为主,空间一直延伸到阳台,摈弃了玻璃门的阻隔,采用了无缝对接,让阳光倾洒下来,极大的提高了主卧的舒适度。床头背景配用深绿色花纹墙布为主,搭配现代简易风格的灯光,层次感呼之欲出。
客服
消息
收藏
下载
最近
















