查看完整案例


收藏

下载
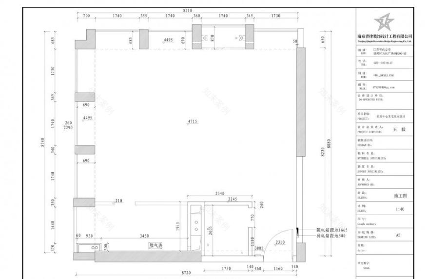
此户型内部只有三个空间:厨房、卫生间以及一个大型空旷的空间。除了厨房和卫生间之外空间没有多余的墙体,楼层高,通透明亮。
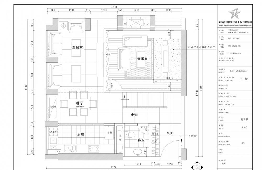
设计师利用4.8米的层高将空间分隔为上下两层,采用ALC轻质楼板做隔层。将原先进户左侧墙面的卫生间门洞,移到了卫生间北侧的墙面上,在玄关左侧做玄关柜,以供进门换鞋挂衣等使用。因为业主是古典音乐“发烧友”,所以设计师用墙体隔出独立的空间作为专业的音乐室。将北侧设计为起居室,在东侧利用音乐室的墙面做为电视机墙面,利用建筑原先的建筑结构分隔沙发当卡座,南侧靠近厨房的空间做餐厅,沿着音乐室南侧的墙面做钢架楼梯上至二楼。
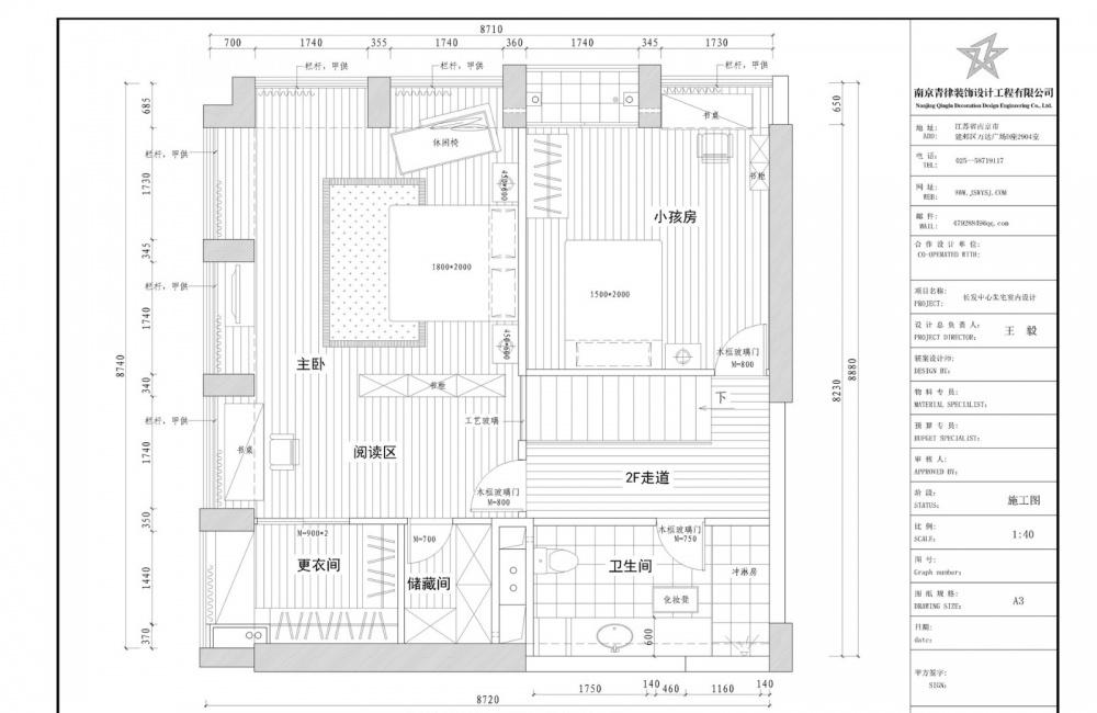
上至二楼,左手边第一个房间就是小孩房,小孩房对面是卫生间,没有将卫生间归为主卧套间内是为了方便小孩和业主共同使用。二楼剩余空间设计为大型的主卧套间,进门是阅读区,通过书柜将卧室休眠区与阅读区分隔开,南侧是更衣间和储藏间。
钢架楼梯,现场折弯、焊接、上漆。干净简练,楼梯的白色与墙面的白色是二者在色彩上形成一体。
一楼走道客卫一侧墙面采用高光材质与楼梯金属漆高光相呼应,横向拉槽则在视觉上延伸走道空间的长度,客卫是的暗门,隐形在墙面里,就像只是一面墙,从来未出现过门一般。楼梯对面墙上采用L型镜面,在视觉上拉伸走道空间的宽度。
餐厅黑色高光的餐桌椅,与楼梯的白色在色彩上相互碰撞摩擦。
厨房金属边框玻璃推拉门阻隔油烟,却又不影响与客餐厅空间光与景的相互借鉴。
餐桌上方的餐灯在简练的一字造型和颜色上与厨房推拉门的金属线条相融合。
黑色的餐桌椅和厨房的白色柜体在色彩上形成对比。
起居室拉上窗帘,打开暖色的灯光,烘托出温暖、惬意的氛围,此情此景此氛围,正合适看上一部温馨、浪漫的电影。
设计师借助建筑原有的结构柱,将沙发摆放在柱与柱的间隙中,更有影院卡座的氛围。
电视背景墙面没有设计任何造型,只是简单的墙面刷白色乳胶漆,有着中式留白的韵味。
电视墙面顶部沿着原有的梁到靠窗一侧,设计师采用镜面拉伸空间长度。
音乐室墙顶面全部使用了吸音材质,将其打造为专业的视听空间,表面乳胶漆夹杂着麦穗做为纹理。
沙发背后是满墙通高的CD架,上面摆满了业主收藏的大量CD。
至于摆放音响处,下防为了不被地面地板以及地板震垫的弹性影响音效,设计师设计了水泥地坪进行些许抬高,然后铺贴石材瓷砖等硬性材料,更好的发挥音响播放的音效。
厨房白色亚光的橱柜和灰色高光的墙地砖以及白色高光的冰箱在色彩和光泽度上相互对比碰撞。
简单的厨具、摆件,没有一件多余的物品,简单、简约。
主卧分为休眠区与阅读区,两者之间只用了一个到顶的书柜进行隔断,柜体上半部分没有柜门,没有背板,让两个空间的光线相互借鉴,也让两个空间似断非断。
通过调节灯光的色调,来更改空间的氛围,调整身心的感受。
这是业主儿子的房间,设计上简洁明了,没有进行过多的装饰。
小孩房都是实用简洁的活动家具。
卫生间采用通长的镜面不仅提供洗漱时使用,还在视觉上拉伸空间的宽度,扩大空间。化妆台和洗手台有高低落差,可以方便坐着使用化妆台,通过台面的一体化和墙面材质的统一,使台面和墙面结合在一起。
客服
消息
收藏
下载
最近






































