查看完整案例


收藏

下载
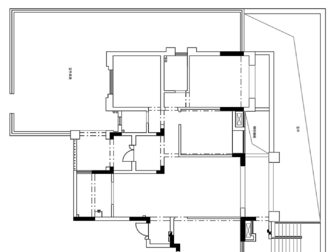
一层原始结构图
一楼平面布置图
二层原始结构图
二层平面布置图
此次户型我们做了较大的改动,主要入户通道从小门厅改到院子,动向的改变使得整个室内空间更大气从容,再加上一些精致细微的设计处理,一套现代轻奢的作品便诞生了。
1:将院子处的玄关大门门洞向外扩,增加室内玄关处的面积,看起来更大方气派。
2:改变玄关处的动向,原来通过玄关后就是一面墙再转折进入客厅,比较拥堵且动线不好。通过设计我们把动线改到由玄关直接入餐厅,将原来通道口设置为金属隔断,门厅设计为八角形,使之更有入户的仪式感和包覆感。
3:将原有的封闭式厨房改成开放式厨房,在厨房与餐厅的交界处设计了吧台作为餐厨空间的自然分隔,吧台下是厨房的橱柜,既增大了储物空间,也有了休闲小酌之处。
4:改变了客厅电视背景墙处的次卧门洞方向,使得电视背景墙更完整。
5:负一楼整体改动比较大,改变了楼梯向下的动向。在楼梯下的空间设计了储藏室,后来为了方便改成了洗衣房。
6:将负一楼的一小块室外面积纳入室内变成过道,使负一楼卧室空间更加完整变成一个大套间,拥有独立的衣帽间和卫生间。
玄关效果图截图
玄关实景照片
玄关效果图截图
此次玄关我们设计了不同之处——八角玄关,引入大理石的纹路增加质感,沉稳的黑色银白龙大理石,搭上象牙色的柜体,灰色格调的瓷砖,配上金色的装饰,强烈的视觉冲击,透着一种深沉、古朴但又让人目眩神迷。黑金色调,华丽的布置,为空间带来精致而柔和的感觉。
餐厅效果图截图
餐厅实景照片
餐厅效果图截图
餐厅实景照片
餐厅效果图截图
餐厅实景照片
餐厅的桌椅采用优雅的白色系,往往简单的色调给人感觉更为直观,白色与黑金色搭配,灰色调和其中,在呈现整体空间格调的同时,视觉上取得平衡与统一。
开放式厨房的设计使得餐厨空间更为开阔,让整体氛围更为融合,而厨房与餐厅之间的吧台仿佛是二者的桥梁,将其连接起来,原本高雅的调性中增添了些许生活的烟火气息。
客厅的设计也是沿袭了黑、白、金三色搭配,金色点缀其中,点缀色的作用是画龙点睛,黑白灰的底色让金色得以突出,将轻奢的大气在沉稳中彰显而出。
业主夫妇为了把更好的居住空间留给家人,便把他们自己的主卧设计在了负一楼。主卧摒弃了较为理性带有冷漠的灰色调,而采取了较为柔和的咖色为主色,这样的用色,使得其中黑、白、金三色仿佛也带上了温度,让整体的主卧空间更为舒适与惬意。蓝色的丝绒家居,触感柔软舒适,时尚又大气,好像空气中也透露出了丝丝缕缕的慵懒气息。
儿童房的设计更偏向于趣味性,男孩子的童年少不了一些英雄人物,床也是孩子喜欢的蝙蝠侠的设计,布艺质感的墙纸,灰色的选用能够大程度上的避免产生视觉疲劳,也对其他色彩上起到更大的包容性。
女儿房,是满满的小公主的设计,粉粉嫩嫩的氛围更贴合小女孩的喜好。贝壳设计的公主床上当然也要摆放自己最喜欢的娃娃呀。希望她能够像小公主一样无忧无虑,幸福快乐的一直生活下去!
位于负一楼的书房,是父母与孩子们之间一起学习娱乐的活动室,也是大家一起闲聊,玩耍的地方。简简单单的最好不过了,书桌两边大大的书柜设计也为孩子以后越来越多的书籍留足了地方。
写在最后
琉璃时光,繁华寂寂
想将那最美好的祝福
寄给流年
寄给你们每一位
如诗般美好的人
我们是一群有情怀的设计师,利益追求不是我们唯一目标,帮业主解决难题,赢得赞誉,收获作品才是我们心之所向。每个房子户型各有千秋,但生活不能将就,我们会竭尽全力打造属于每一个人的漂亮舒适家。
希望我们的客户,在我们设计的房子里,一直幸福的生活!
…END…
客服
消息
收藏
下载
最近





































