查看完整案例


收藏

下载
公区顶面采用无主灯设计贯穿整个空间,使得整个空间更具有延展性,利用一层公区顶部横纵交错的梁结构,打造出一种书卷的感觉,从玄关处向内缓慢延伸
木制的怀旧阅读柜、摇马,黑色隔板,惬意的一角。
当尘埃落定,去邂逅沉睡的小猫咪.......
厨房女主的主战场,采用高低台的设计,配备各种拉篮五金、13件套的洗碗机、富士的白色烟机,复古的白色格子砖,白色和木色撞色的柜子搭配,让厨房颜值爆表。
在这里梳妆想想都觉得很惬意......
从楼梯可以俯视到我们的餐厅.......
卫生间也是可以花一些的
阳光明媚
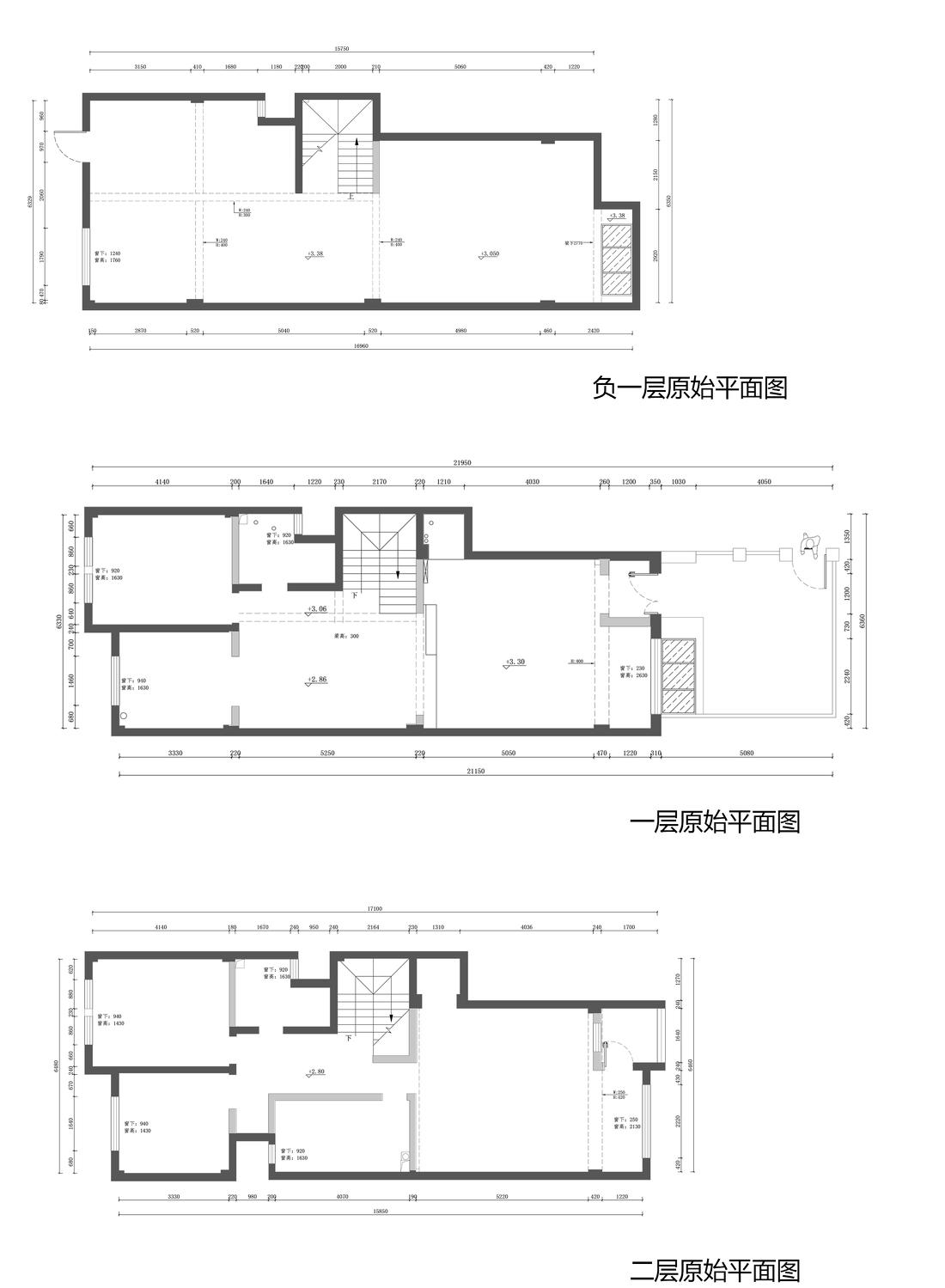
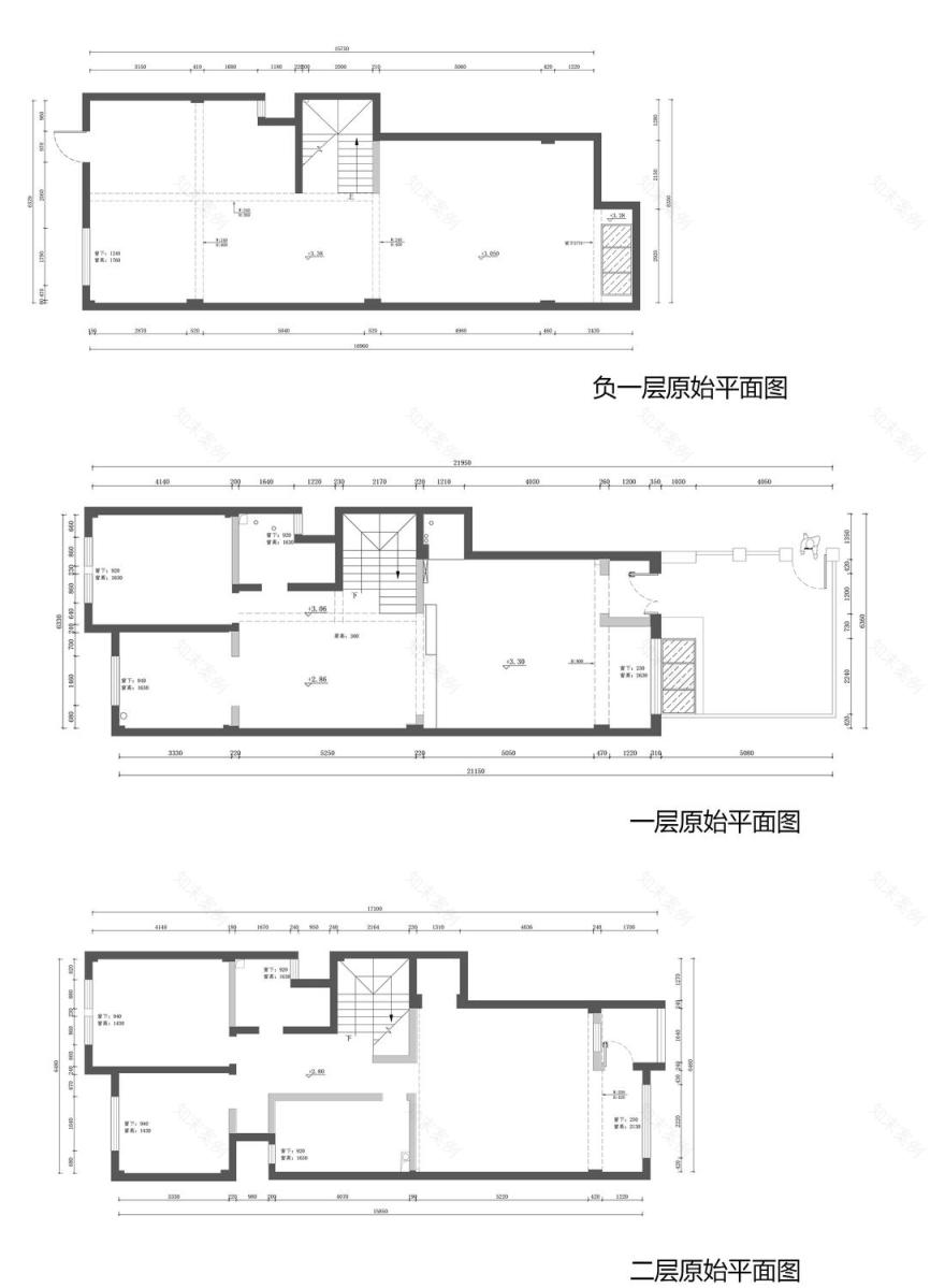
原始平面图
平面布置图
客服
消息
收藏
下载
最近



















