查看完整案例


收藏

下载
地下一层用影音室
二层敞开式休闲区
地下一层健身房
客厅一角,精致的壁炉增添一份雅致
白色的大理石墙面洁净挺拔,没有冰冷的感觉,反而带给你亲近和温馨,这也是当初挑选材料是的初忠。
玉石柱身支撑起客厅空间,把本身平淡的生活带来了力量和毅力。
靓丽的皮质沙发和定制的石材面茶几,处处显得极致用心,家就应该有自己喜欢的样子。
别墅外立面石材结构,院落内设计了木制的烧烤台,流水的碧泉
酒吧区是朋友们聚会饮酒的地方。
茶室放置在客厅西面位置,茶台和椅子都是特殊定制的,铜的高贵和气质 都体现了用心之处。
门厅 墙面采用白色石材,法式柱廊造型讲究,精美的雕刻点缀,近十米的延伸空间尽头把高度七米的教堂玻璃移入建筑柱体结构内,迎面的建筑气质应景而生,虔诚之情让人心情平静。鲜花勃然生机,映射出业主的热情。
楼梯间墙地面都用了石材,实木的橡木扶手更显自然和温馨。定制的高三米的画作把中国特有的江南水乡引入家中。
二层的开敞式书房,墙面白色大理石,书柜采用橡木实木材质,传承法式经典元素,空间温馨恬静。
楼梯间墙地面都用了石材,实木的橡木扶手更显自然和温馨。定制的高三米的画作把中国特有的江南水乡引入家中。
室外地面作了细致的材质拼置,增加了庭院的趣味性,整体院落做了喷雾装置,炎热的夏季多了一份清凉,仿佛置身仙境。
地下一层平面布置图
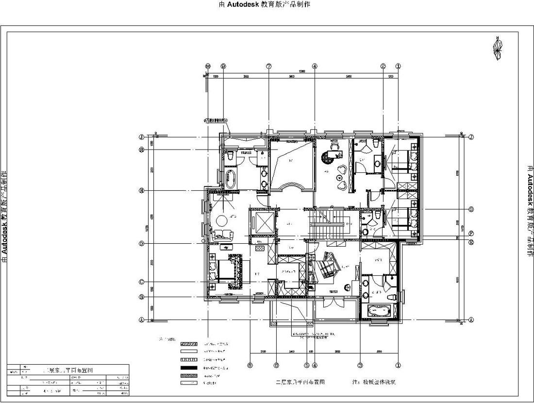
二层平面布置图
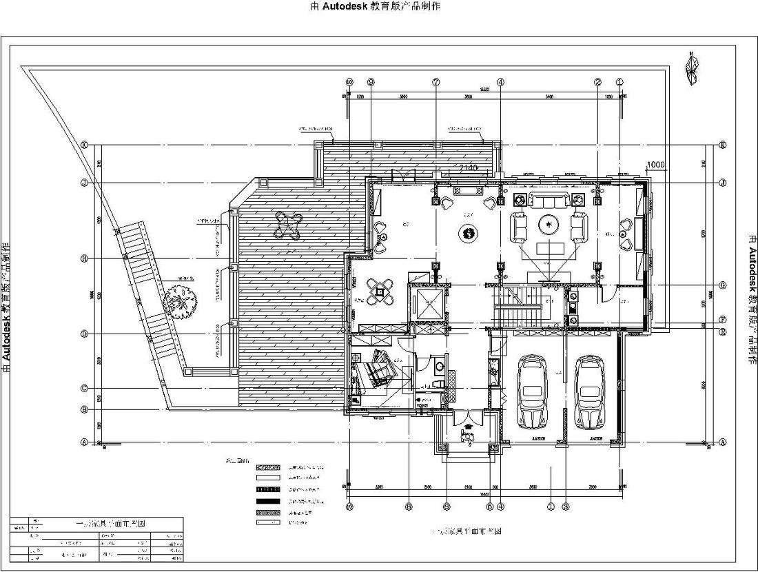
一层平面布置图
客服
消息
收藏
下载
最近




















