查看完整案例


收藏

下载
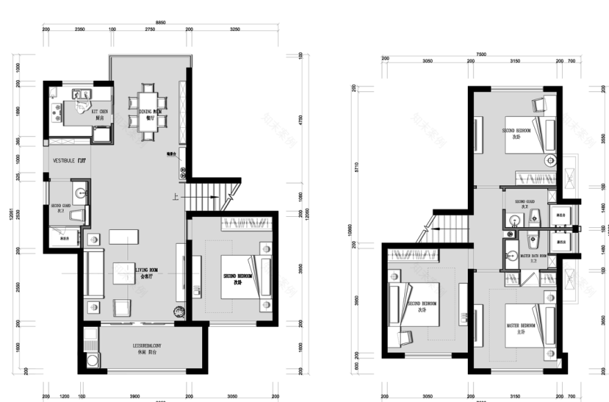
1.本案例是四居室复式布局,一层有两厅、次卧次卫、厨房、阳台,二层分布三间卧室、两次卧次卫。
2.户型没有浪费的区间,利用比较合理,整体没有过多需要改造的地方,主要是把各个功能区分配清晰。
从一进门开始,就是极具中国风味的装饰摆件,多边形设计的柜台,墙壁上还有圆形壁画作装饰,头顶上两个射灯打下来,很有意境。
客厅以米白色调为主,清新淡雅,也没有主灯设计,顶板四周分布多个射灯,空间明亮,设计风格于简约中糅合些许东方元素,打造出具有品质的理想住所。
一张地毯占据了客厅差不多一半的空间,水墨晕染风格,和整体的空间设计相融合,沙发是黑白灰三色调简约风格,茶几是黑色实木,和电视柜保持统一,电视背景墙也是借鉴了中国风画作,使用大理石材质,散发典雅气息。
比较用心的一点,家中随处都是中国风摆件,就像茶几上摆放的假山摆件和白狮子,从细节就处处展现出业主对新中式真挚的爱。
家中处处都是业主的收藏品,精致感显露无疑。
餐厅有一个视野宽阔的窗户,采光性很好,用餐环境明亮干净,餐椅是明黄色系比较亮眼,相配的餐桌是棕色实木,适当的把明黄色压下来一点,这样搭配刚刚好,就不会觉得空间色系太跳跃。
餐桌旁边还有一列书柜,橙色底色,有很多排小格子,业主用来摆放书籍和部分收藏品,让餐厅也处处显露出素养。
餐厅旁边就是厨房区域,L型布局能较大化利用空间,另外用色比较素雅,墙面是灰色大理石,台面白色,橱柜深棕色,一个设计好看的厨房在很大程度上会影响做饭的心情。
餐厅的旁边,就是通向二楼的楼梯区间。
通往二楼的区间,另外一半墙面用屏风和简约中国风吊灯来装饰,瞬间让人融入这副意境之中,楼梯在每一梯上,都有安装灯带,晚上下楼也不用担心看不清楚。
二楼主要是卧室,这一间是儿童房,在用色上明显更为活泼一些,床头部分的墙纸用了粉色,床铺则是蓝色、黄色、粉色等多种亮色系进行搭配,地板上还有一处圆形的水墨地毯,也是给中式风格起到点睛之笔。
这一家卧室是父母房,装修风格去繁从简,用色上也很素雅,背景墙用树叶图案来进行装点,不会太单调,灯饰选用的水晶吊灯,轻奢大气,整体看上去简约但又不简单。
床头柜也有装饰品,展现业主的高品位。
这一间是老人房,老年人一般不会喜欢太多的装潢,简简单单的纯色墙面,加上地毯装饰,中国风床品,这就已经很合他们的喜好了。
位于次卧的卫生间,灰色大理石为主要材质,干湿分明,淋浴区有玻璃门来进行划分,洗漱区有储物柜来放置常用物,尽量保持台面的整洁。
客服
消息
收藏
下载
最近


















