查看完整案例


收藏

下载
▼总平面图,site plan
▼地下层平面图,patio level plan
▼一层平面图,ground floor plan
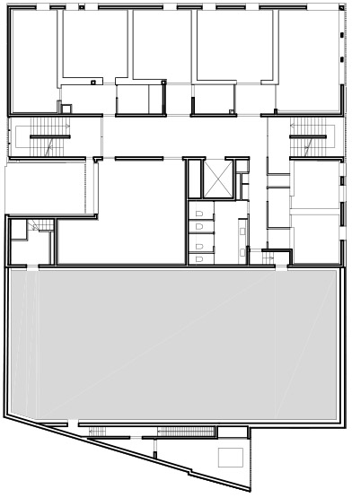
▼二层平面图,second floor plan
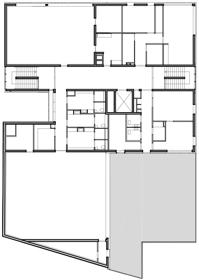
▼三层平面,third floor plan
▼多功能剧场,flexible theater
Location: 17-21, rue de solferino– 92170 vanves
Client: GPSO – VILLE DE VANVES
Architects: BABIN+RENAUD
Consultancy: GRONTMIJ ETCO
Acoustician: ACV
Scenographer: XNS
Surface: 3198 M2 SDP
Schedule: 2010–2016
Cost: 11 828 149,92 euros HT
General contractor: LEGENDRE
Drawings: BABIN+RENAUD Architects
English text: BABIN+RENAUD Architects
MORE:
Babin+Renaud Architectes
, 更多请至:
客服
消息
收藏
下载
最近

























