查看完整案例


收藏

下载
来自擅长树屋设计的
Baumraum Office
Appreciation towards
Baumraum Office
for providing the following description:
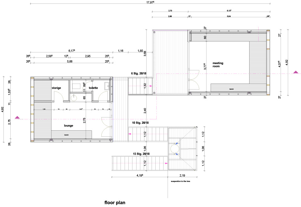
森林中的树屋,源于建筑师与比利时业主Sappi的无间合作,旨在打造出一个环保又具有经济效能的树屋项目。该树屋共有两个部分组成,下层体块含咖啡厅,厨房,卫生间和设备房。上层空间是三面设有柔软座位的会议室与活动室。每层都有室外露台可休息,房间采用了树影墙纸。这个树屋与森林形成某种程度共存。
Sappi, The Flemish Forest and Nature Agency, the commune of Hechtel-Eksel and Proximity joined forces in a unique partnership to stimulate companies, politicians and organisations to embrace sustainability in their daily activities. What better way to do this than to build a treehouse? According to the international paper producer Sappi, which started the project with Proximity BBDO, their communications agency, a treehouse would make their sustainability efforts more tangible, more real, and a true source of inspiration for others to follow.
The Flemish Forest and Nature Agency and the commune of Hechtel-Eksel, were quickly sold on the idea to create this project on their premises and enthusiastically embraced the concept.
All with one vision: environmental quality and social responsibility for the benefit of people, planet and prosperity.
THE TREEHOUSE helps to bridge the gap between economy and ecology.
THE TREEHOUSE isn’t just any treehouse. It’s a small architectural wonder equipped with state-of-the-art eco facilities located in the forests of Hechtel-Eksel
THE TREEHOUSE is the ideal place to hold break-out sessions where businesses can brainstorm about the importance sustainability to their company and ways they can improve to build a better future for the planet. It is the perfect location for scientific research and relevant presentations.
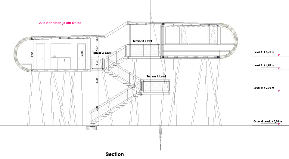
How is THE TREEHOUSE designed? The major image of the design is a sheet of paper that is pleated and encloses both interior and exterior spaces. THE TREEHOUSE is based on five elements: two cabins on different levels, connecting terraces, a staircase and a connecting roof.
The cabins
In the lower cabin is a coffee lounge, pantry, restroom and technology room.
The upper room is dedicated to meetings and other events that are appropriate to this exquisite space among the trees. Benches covered with soft pillows surround the space resulting in a comfortable and laid-back feeling, encouraging one to stay longer.
Construction
The cabins and upper terraces rest on 19 angled steel stilts. Each steel stilt is connected to the ground below with foundation screws that have a minimal impact on the forest floor.
Heating and ligthing
All equipments use the existing supplies (green electricity and water purification) of the nearby museum or are selfsufficiently (heat pump). The newest techniques are used for the heating and cooling system. A heat pump unit which is situated in an underground space, extracts heat from the air. The warmth is transported through tubes which are led through one of the steel columns into the cabines. After converting the warmth to a fluid, tubes will transport it to the heating-units under the benches. The result of this low temperature heating system is a nice, comfortable climate and the energy cost remains very low. In summertime the system can be used for cooling as well. This system is CO2 neutral. The balanced ventilation system is totally demand-based with supply and abstract units integrated in the benches. The ventilation and heating systems are continuously monitored. To minimize the energy consumption, all lights are LED.
In the toilet, daylight- and movement-sensors are integrated in the LED armatures.
The Treehouse / Baumraum Office
Hechtel-Eksel, Belgium, 2012
Photographer: Markus Bollen
Client:
This unique project is founded by the partnership of Sappi, The Flemish Forest and Nature Agency, the commune of Hechtel-Eksel and Proximity BBDO
Architect:
baumraum
Andreas Wenning
Dipl.-Ing. Architekt
Photographer: Markus Bollen
MORE:
Baumraum Office
,更多请至:
客服
消息
收藏
下载
最近



















