查看完整案例


收藏

下载
非常感谢
David Salmela Architect
.
Appreciation towards
David Salmela Architect
for providing the following description:
这栋住宅位于湖泊旁安宁静谧的山毛榉树林中。周围的森林和湖泊对住宅来讲都是宝贵的风景资源。
全部宽屏图纸请到
相册
,点击
相册
中图片看大图。
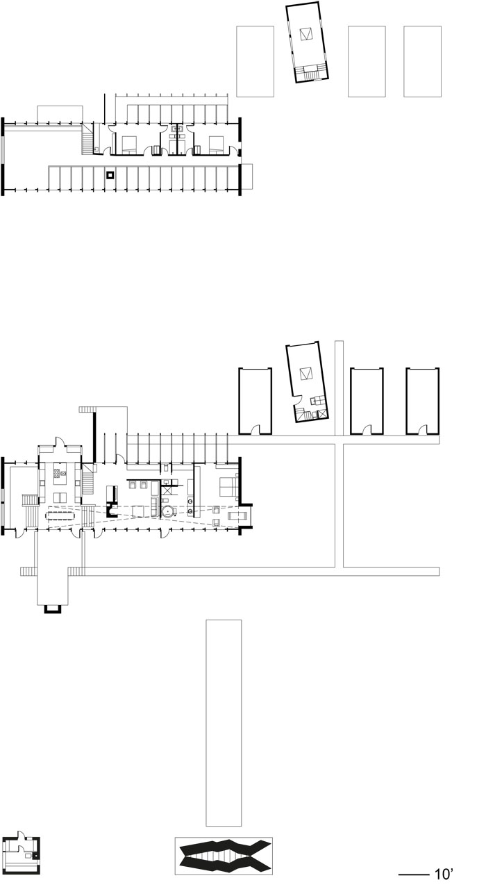
The retreat rests on a quiet 16 acre site amongst a tall, dense beech forest that descends to lakeshore. The orientation of the building magnifies this slope and places equal value on views to the trees and the water. Entering the site you are met by four separate black-clad structures which separates the prosaic functions of a garage. Beyond stands the house with white masonry bookend facades and sidewalls of exposed wood columns mirroring the forest parallel. The repetition of the glulam columns entices you along a colonnade to the front entry. Contrary to the predominately black exterior, you enter at a midlevel to a lighter wood-lined hall. Morning and evening light fill the space and the rhythmic wood structure provides an open plan with telescoping spaces flowing into and overlooking each other.
Given the clients are avid chefs the bright red kitchen is the central communal area. Dividing the kitchen from the above living area is a white-painted masonry fireplace which makes a connection to the outdoor chimney standing sentinel on the West patio, further diminishing the line between inside and outside. The sleeping area recedes past the living room with additional rooms located in the above mezzanine. In the distance there is a stand-alone masonry sauna with sod roof and a black sculpture marking the bocce court. Despite its openness, the retreat retains an intimate feel, a mystery, stimulating the imagination in both intellectual and emotional ways.
Yingst Retreat
Michigan, 2008 / 4000sqf
David Salmela, FAIA / Salmela Architect
Photo credits Paul Crosby, Undine Prohl, Peter Kerze
▼主体建筑开窗少的面(面向入口)是白色,与入口处的四座黑色车库形成对比。
▼主体建筑大开窗的面加上了纵向的木柱,并向外自然的形成廊道框架。这些木柱就像是树干一样。
▼白天光线通过这立面纵向木柱游走在室内。
▼业主是料理发烧友,红色大厨房占据住宅开放空间中重要区域,并与室外庭院相联。
▼生活区有壁炉,地面铺着瓷砖的白色和木色为主色调的空间。
▼室外的抛球游戏院落及其背景雕塑。一个开放的室外空间,但又保持了神秘性,亲密性。
▼室外桑拿房
MORE:
David Salmela Architect
,更多关于他们:
.
客服
消息
收藏
下载
最近






























