查看完整案例


收藏

下载
▼分析图,Diagram
▼总平面,Master Plan
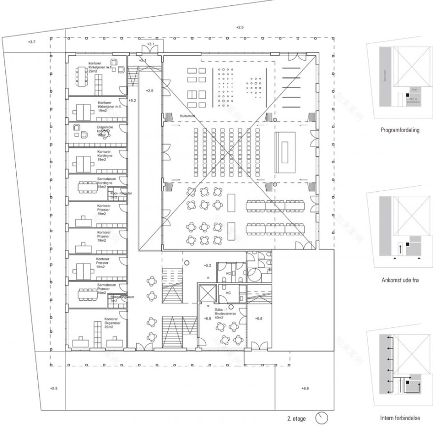
▼平面图,Floor Plan
▼立面图,Elevation
▼剖面图,Section
PROJECT INFO:
NAME: New Church in Sydhavnen
SIZE: +2500 m2
LOCATION: Teglholmen, Copenhagen, DK
CLIENT: Sydhavn Sogn
YEAR: 2016
TYPE: Open competition, 1. prize
ARCHITECT: JAJA Architects
ENGINEER: Søren Jensen Rådgivende Ingeniører
客服
消息
收藏
下载
最近























