查看完整案例


收藏

下载
陪审团评论说:“这项提案创造了一种诱人而亲密的氛围,让人感觉像家一样…它满足了我们所有的愿望,为有特殊需要的儿童创造了一个未来家园的模式。”
"The proposal creates an inviting and intimate atmosphere that makes it feel like home... It fulfills all our aspirations in creating a model of future homes for children with special needs," commented the jury.
Site Plan. Image © CREO ARKITEKTER A/S & JAJA Architects
现场计划。图像 (CREO Arkitekter A/S)
来自建筑师:该建议是基于现有的建筑两翼,这形成了一个独特的抵达情况,同时保护住宅远离道路和它的邻居。两翼向西南和绿色环境展开,为与哈雷斯克文边缘接壤的令人惊叹的户外区域创造了一个框架。
From the architects: The proposal is based on the existing building of two wings, which form a distinct arrival situation while shielding the residence from the road and its neighbors. The two wings open up towards the southwest and the green surroundings and create a framework for the stunning outdoor areas bordering the fringe of Hareskoven.
新的空间规划比目前的情况要大得多,因此,为了保持居住街道的规模,保持对绿色环境的开放,我们提出了两层建筑。顶层标志着居民的明确抵达情况,并具有与道路密切相关的功能,以便于进出。
The new spatial program is significantly larger than the current situation, and so to keep the scale along the residential street and maintain an open access to the green surroundings, we propose a building on two levels. The top floor marks a clear arrival situation for the residents and is programmed with functions closely connected with the road for ease of access.
Axo. Image © CREO ARKITEKTER A/S & JAJA Architects
阿克索。图像 (CREO Arkitekter A/S)
较低的部分被定义为一个更多的多孔和多边形建筑,最大限度地与绿色环境密切相关的立面。在这里,住房单元的主体被放置在一些壁龛和角落,软化了室内和室外之间的过渡。
The lower part is defined as a more porous and polygonal building that maximizes facade in close relation to the green surroundings. Here, the main body of housing units are placed to form a number of niches and corners softening the transition between indoors and outdoors.
这两个层次是通过一个主要的垂直连接在入口处与两个二级快捷键为年长的儿童和工作人员。
The two levels are connected by a primary vertical connection right at the entrance with two secondary shortcuts for the older children and staff.
Entrance area. Image © CREO ARKITEKTER A/S & JAJA Architects
入口区域。图像 (CREO Arkitekter A/S)
主要的卷放置在网站的东北角,创造了一个更加慷慨的绿色空间的哈雷斯克文。通过在道路上放置较高的空间,未来的住宅将目光投向“绿色背景”,并在道路的尽头将森林围成框架-- 这是我们想要保持的质量。
The major volume is placed in the northeast corner of the site, creating a more generous green space towards Hareskoven. By placing the upper volume along the road, the future residence looks out to the ’green backdrop’ and frames the forest at the end of the road - a quality we wanted to preserve.
通过两层以上的设计,大约四分之一的建筑面积是沿 Damsagervej 的正面,这样,尽管整体房屋面积,其体积与居住街道的规模有着同情的关系。
By designing the building over two levels, roughly a quarter of the total building area is situated with frontage along Damsagervej, and in this way, despite the overall housing size, the volume relates sympathetically to scale of the residential street.
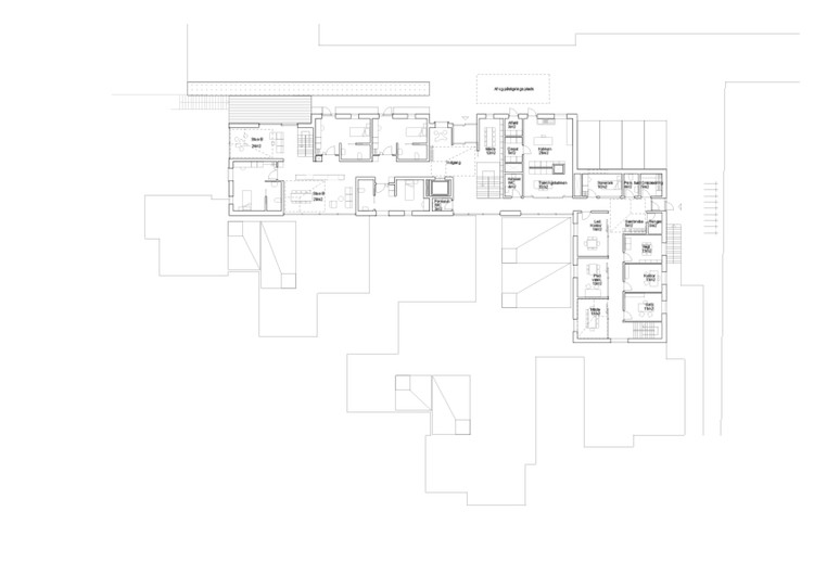
Upper Level Floor Plan. Image © CREO ARKITEKTER A/S & JAJA Architects
高层平面图。图像 (CREO Arkitekter A/S)
Upper Level
高层由三个方面组成:管理/工作人员、厨房和住房单元“B”。位于厨房和 B 单元之间的中央是可以进入所有区域的主要入口,包括通过开放的楼梯和电梯进入较低层。为了使正门更加亲切和亲切,工作人员办公室被稍微拉离住所,在停车场附近增加一个工作人员入口。
The upper level consists of three areas: management / staff, kitchen and the housing unit ‘B’. Centrally positioned between the kitchen and unit B is the main entrance from which all areas can be accessed, including the lower level via an open staircase and elevator. To give the main entrance a more intimate and homely character, the staff offices are pulled slightly away from the residences, with an additional staff entrance near the Parking area.
厨房位于入口和电梯附近,有通往上层住宅的通道。典型的家庭厨房是一个令人愉快和令人兴奋的地方,新厨房-- 结合培训区-- 也提供了一些东西。厨房的中心位置是为了激发孩子们的好奇心,鼓励他们在放学回家后积极参与。
The kitchen is located near the entrance and elevator with access to upper floor residences. The typical domestic kitchen is a pleasant and exciting place, something the new kitchen - here combined with the training area – is also offering. The kitchen’s central location seeks to inspire the children’s curiosity and encourages their active participation when they come home from school.
View from upper window. Image © CREO ARKITEKTER A/S & JAJA Architects
从上面的窗口观看。图像 (CREO Arkitekter A/S)
上面的楼层向下面的森林提供了广阔的视野。为了创造一个从前景到背景的美丽过渡,我们提出了一个开花的景物屋顶,使屋顶成为景观的一部分,当你看上一层楼。此外,刚玉处理雨水的排水,并提供一个可持续的绿色屋顶覆盖。
The upper floor provides a generous view toward the forest below. To create a beautiful transition from foreground to background, we propose a roof of flowering sedum so the roof becomes part of the landscape when you look of the upper floor. In addition, the sedum handles drainage of rainwater and provides a sustainable, green roof covering.
Lower Level Floor Plan. Image © CREO ARKITEKTER A/S & JAJA Architects
较低层的楼层图则。图像 (CREO Arkitekter A/S)
Lower Level
较低层的大部分由住宅单元和面向花园的公共房间组成,支持程序位于后缘。每个住房单元围绕一个共同的居住空间,直接进入花园。在公共空间的每个角落上方都有一个天窗,它提供了一个“房间内的房间”,同时确保当房间被分成两部分时,阳光充足。一个定制的架子家具缓冲私人和流通空间,同时提供内置的利基给孩子们退却。
The majority of the lower level consists of residential units and common rooms facing the garden with supporting program located at the rear edge. Each housing unit surrounds a common living space with direct access to the garden. Above each corner of the common space is a skylight that provides a ‘room within a room’ while ensuring good daylight when the room is divided in two. A bespoke shelving furniture buffers the private and circulation space while providing built-in niches for the children to retreat.
景观被拉在较低的体积之间,以满足作为建筑物心脏和支点的中央庭院。
The landscape is pulled between the lower volume to meet the central courtyard that serves as the building’s heart and fulcrum.
Common Space. Image © CREO ARKITEKTER A/S & JAJA Architects
公共空间。图像 (CREO Arkitekter A/S)
在这里,主要活动室位于,设计有两个天窗,为各种运动和游戏提供间接照明和额外的头部空间。更大的房间旁边是较小的壁龛,包括一个集合的特殊功能,如感官和创意车间。
Here, the main activity room is located, designed with two skylights to provide indirect lighting and additional headroom for various sports and play. The larger room is bordered by smaller niches, housing a collection special functions such as sensory and creative workshops.
四合院两侧都有与住宅开发的进一步连接。庭院运动给居民提供了对绿色环境的美丽体验,也是建筑的主要定位点。
Along both sides of the courtyard are further connections to housing development. The movement along the courtyard gives residents a beautiful experience to the green surroundings, and also acts the main point of orientation in the building.
Multipurpose Room. Image © CREO ARKITEKTER A/S & JAJA Architects
多用途房。图像 (CREO Arkitekter A/S)
住宅的流通是围绕着四个角度的手臂形成的,这四个角度打破了走廊的长线。在每个扶手的末端是一个楼梯,提供通往上层的通道,并在建筑物中创建两个较小的回路,以便工作人员能够快速地在每个住房单元之间流通。两个工作人员小组位于大楼的每一个侧翼,一个靠近 A 和 C 单元,另一个在 D、E 单元,通过楼梯快速进入 B 住房开发区。
Circulation in the residence is structured around four angled arms that break down the long line of corridors. Positioned at the end of each arm is a staircase that provides access to the upper floor and creates two smaller loops in the building so that staff can quickly circulate between each of the housing units. The two team-units for staff are located in each wing of the building. One near units A and C and another at units D, E with quick access to housing development B via the stairs.
Section. Image © CREO ARKITEKTER A/S & JAJA Architects
部分。图像 (CREO Arkitekter A/S)
建筑师 CREO Arkitekter A/S,Jaja建筑师首席顾问CREO Arkitekter A/S Sub-顾问 Jaja 建筑师,ISC R dgivende Ingeni rer A/S客户Ejendomsselskabet Damsager P/S建筑面积1500.0平方米2018年
Architects CREO ARKITEKTER A/S, JAJA Architects
Lead Consultant CREO ARKITEKTER A/S
Sub-Consultant JAJA architects, ISC Rådgivende Ingeniører A/S
Client Ejendomsselskabet Damsager P/S
Area 1500.0 sqmProject Year 2018
客服
消息
收藏
下载
最近


















