查看完整案例


收藏

下载
来自波士顿的
Kennedy & Violich Architecture
波士顿建筑事务所Kennedy & Violich Architecture在哈佛大学一栋老化砖图书馆的基础改建出与校园紧密关联的人类学系公共空间,翻新后的建筑采用钢筋混凝土结构,有一个有巨大天窗的铜屋顶。入口的砖墙有数字化的砖造型。而内部,则围绕明亮中庭组织了一个由桦木吸声板组成的舒适公共空间。
▼ 鸟瞰 Exterior Aerial
新的人类学系大楼改造后面积达到35000平方米,内部有教师办公室,研究生办公室,图书馆,教师,会议空间,同时与邻近的博物馆群相连。建筑位于大学博物馆院落中,与皮博迪考古博物馆和哈佛自然历史博物馆也近在咫尺,可谓处于历史地段核心。
哈佛大学人类学系是由考古学系和社会人类学系共同组成。随着新系馆的落成,社会学系的办公空间和教学空间与考古学并存同一屋檐,共享公共空间。
General Overview
The new Tozzer Anthropology Building is a 35,000 square foot transformation of an existing library building which houses faculty and graduate student offices, a library, classroom and seminar spaces, and provides accessibility to an adjacent museum complex. The building is located at the end Divinity Avenue across the Street from Divinity Hall and in the middle of University Museum, a large courtyard building made up of the Peabody Museum of Archaeology and Ethnology and the Harvard Museum of Natural History. Both buildings are on the National Register of Historic Places.
The university’s Anthropology Department, made up by Archaeology and Social Anthropology, had been housed in two buildings limiting social interaction between the two programs. With the consolidation of library holdings, Harvard University sought to unify the programs under one roof by moving Social Anthropology’s administration offices and teaching spaces into the new building, connecting it directly to Archaeology, and calling for generous social spaces for collaboration and engagement.
▼ Exterior From Northeast 东北外立面
现代主义时期的大学建筑普遍十分老化,同时不能满足当代需求,以及不能满足抗震与节能法规。但是大学要求改建均需要利用现有建筑,采用钢筋混凝土结构并与园区基础设施链接。新的体量比以前大29%,同时铜屋顶上的天窗为建筑内部带来一个凉爽明亮的中庭。
除了在体量上利用铜屋顶增加两层的空间并制造出明亮的共享空间外,建筑还整合入口,塑造了一个与系馆大堂,外部庭院以及皮博迪博物馆共同链接的公共入口。新设计融合对景观元素的考量以及对考古照片与文物设计的考量。
Project Design
Modernist era university buildings are aging across America due to outdated construction that was based on building codes that cannot meet contemporary envelope, seismic, and energy requirements. At the same time universities cannot dismiss the embodied energy and materials that make up these buildings. The Tozzer Anthropology Building transforms the public presence and programs of Johnson and Hotveld’s 1971 Tozzer Library by re-using the existing building’s foundation, campus infrastructure connections, and steel and concrete structure. The new massing increases usable SF by 29% with a copper roof volume, which rotates to capture daylight and strengthens a reading of the building as a pavilion in the Peabody Courtyard.
The project’s massing strategy adds two stories of new construction under a large copper roof volume, which rotates to capture daylight for a large internal light well around which the internal programs revolve. An exterior porch had separated the building from Divinity Avenue, and a dis-used tunnel prohibited access to the courtyard. The design creates a public entry on Divinity Avenue, which establishes a new public connection between the lobby, the exterior courtyard and the Peabody Museum Collections. The massing strengthens a more independent reading of the Tozzer Anthropology building as a pavilion in the Peabody Courtyard. The new design includes new landscape elements and grading of the Peabody Courtyard as well as the design integration of archeological photographs and artefacts.
建筑1971年建成的三层砖楼表皮因为模板和防潮的问题而不能继续使用。建筑师收集这些砖块,将他们重新排列,在入口处打造出一个数字化造型的砖雕刻表皮。在这个表皮设计中,运用到了3D建模中的‘corbel’,但是这种设计却遭到了当地泥瓦匠的不屑。最终在设计师和施工方的同理合作之下,这有有着旋转错位的数字感满满的砖墙表皮得以实现。
The 1971 three-story brick envelope could not be re-used due to mold and vapor barrier problems in the original construction. A wire cut ‘iron burnt brick provides texture for the main building while a precise smoother finish is used for the entry pavilion– a ‘thick’, digitally sculpted volume of brick, that uses and transforms a contemporary 6” brick veneer cavity wall construction. At the new entry pavilion, the design invents a digitally stacking and corbelled brick detail. Each brick unit is tied, by design, to the overall global form of the entry pavilion’s massing. Using software created specifically for this project, the digital brick corbelling was tested digitally and empirically in numerous prototypes. The digital ‘corbel’ was 3D modelled course by course then mocked-up by local masons. The 30′ brick entry has no control joints or relieving angles, just one custom-designed loose lintel set above the hung brick ceiling. Each brick course is shifted from the course below following the overall building geometry, creating a unique pattern that is derived form –and could only work with– this specific massing form.
▼East Elevation 东立面
▼Exterior Entry Pavilion & Exterior Entry Brick 入口与入口砖
主体建筑外表皮也采用了砖,每一层都设有水平的伸缩缝,高而长的窗户向外凸出。整体造型向周围历史建筑致敬,也不失自己的当代韵味,同时材料的质感拿捏得恰到好处。
The main building is wrapped by ‘thin’ taught brick bands which express the existing slab, off which the new brick envelop is relieved. Vertical expansion joints are staggered between floor levels while horizontal expansion joints occur behind recessed solider courses. The structurally-glazed projecting windows slide past the ‘thin’ brick envelop and align to provide large views from Library to Courtyard. With a play of “thick” and “thin”, the design creates an authentic brick material expression that reflects contemporary construction and the layered brick of the Landmarked Peabody Museum.
▼Exterior From Southeast 东南面
建筑师在这个混合系馆和图书馆的大楼中还设置了智能教室,公用会议空间,教师办公室,人类学藏品库等等功能。所有的功能空间围绕一个装饰着桦木吸声板板的中庭空间。充满阳光,视觉上联系着各层的中庭空间让办公室,教室以及非正式聚会空间的界限模糊。此外系馆采用了一种创新的节能通风系统,并获得了LEED金牌认证。
Working with University and Anthropology Faculty, Staff and Librarians, the KVA design team developed smart classrooms, collegial spaces, faculty offices and a renewed Anthropology Library to house the Tozzer anthropology collections. The new program is organized around a torqued central light well clad in an augment new birch wood panel system which reflects light and absorbs sound. Offices, classrooms and informal gathering places ring this “living space”, which brings daylight into the building, and creates visual relationships between floor levels. The light well circulates tempered air as part of an innovative energy-saving ventilation system. The Tozzer Anthropology building was recently completed and has received LEED Gold certification.
▼ Interior Collegial Space 内部公共空间
▼ Interior Lightwell 光井
▼Interior Lightwell 光井
▼ Interior Lightwell From Fourth Floor 从四楼看光井
▼Interior Lightwell Point 光井
▼ Interior Lobby Entry 大堂入口
▼ Interior Lobby 室内大厅
▼ Exterior Courtyard Dusk 黄昏外景
▼ RF
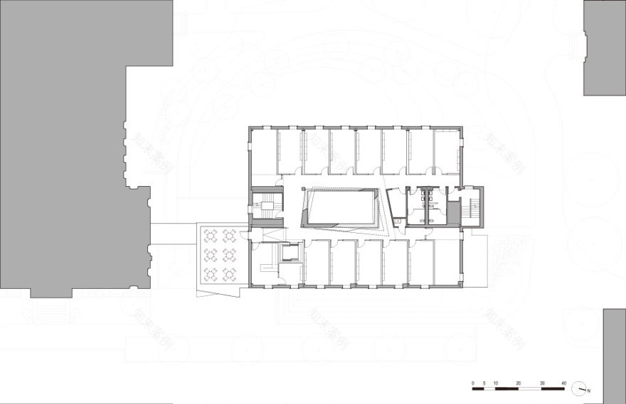
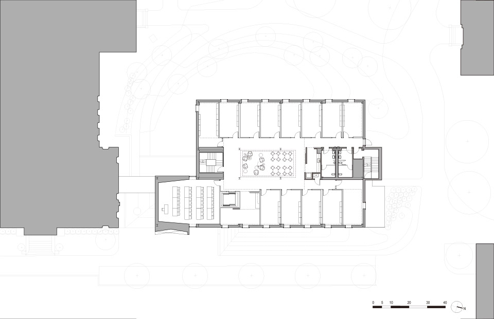
▼ 4F
▼ 3F
▼2F
▼1F
▼-1F
MORE:
Kennedy & Violich Architecture
,
更多请至:
客服
消息
收藏
下载
最近


























