查看完整案例


收藏

下载
来自
Kichi Architectural Design
宅屋身,园林心。犹抱琵琶半遮面,未成曲调先有情的Scandinavian middle
,
波纹之家,观樱之宅The House Reflecting Ripples
以及
居住在春天中 — 吉祥寺之家 Renovation in Kichijouji
。更多请至:
photos ©
Ippei Shinzawa
.
PAT INN旅店位于日本南部太平洋小笠原群岛中的集集岛上。这里距离东京1000公里,属于亚热带气候,常年温暖,拥有许多独特的动植物,为此,群岛在2011年还被列为世界遗产。
This inn is located on Chichi-jima, which is part of the Ogasawara archipelago located in the Pacific Ocean approximately 1000 km south of Tokyo.
Ogasawara archipelago has a subtropical climate, meaning it is warm all year round and is an ocean island which has never once been joined with a continent.
As such, there are many species of flora and fauna unique to Ogasawara that cannot be found anywhere else in the world.
In 2011, Ogasawara was listed as a World Heritage Site.
小笠原群岛从1830年开始有来自夏威夷的居民居住,而酒店就位于第一批居住者当时的居住点。
酒店店主希望客人体会到小笠原的美食,历史,文化,还有他世代居住于此地的家族的历史。
Humans first inhabited Ogasawara in 1830, when 5 Caucasians, including Nathaniel Savory, and 25 Hawaiians from Oahu Island established a colony.
The current day owner of the inn is the great-great-grandson of Nathaniel Savory.
The hotel’s location is historically significant as the place where Nathaniel Savory built the first man-made dwelling ever to be built on the Ogasawara Islands.
This innkeeper runs his hotel with the strong hope his guests will experience the nature, cuisine, history and culture of Ogasawara in this historic place passed down through the generations of his family.
建筑外观设计简洁,游客的注意力能够更多的放在当地的自然景观上。
The façade is a simple, neat design which acts as a canvass to the main attraction of the surrounding nature.
该建筑的室内设计也相当简洁,以白色为基调,结合砂浆以及其它的本真基础材料,营造出群岛悠闲自然的感觉。
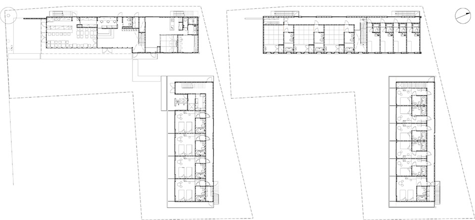
酒店共两栋楼,一栋用作酒店,含13个房间,包括单人房,双人房和日式客房。一层的公共餐厅能让客人享受到小笠原当地美食。接待处的图书馆书架通墙高。店主家人和工作人员住在另外一栋建筑中。如果客人想体验住家感觉,也可以申请和店主他们合住在一起。
Like the façade, the inn’s interior also adopts a simple design, using a basic tone of white and combining the natural colors of the mortar and base materials in order to reflect the laidback feel of the archipelago.
The inn comprises of 2 buildings, with a total of 13 rooms including single rooms, twin rooms and Japanese-style rooms. There is a restaurant where guests can enjoy Ogasawara cuisine, a library conveying the history of the archipelago and the long hallway running in front of the guestrooms serves as a gallery.
With the innkeeper, his family and other staff living in an adjacent building, Pat Inn offers guests that at-home experience possible due to being family-owned and operated.
MORE:
Kichi Architectural Design
,更多请至:
客服
消息
收藏
下载
最近


























