查看完整案例


收藏

下载
Japan tsukuba Circle House
设计方:Kichi Architectural Design
位置:日本
分类:别墅建筑
内容:实景照片
图片:21张
摄影师:Ippei Shinzawa
从外面看,别墅就像是从广阔的草坪上升起来的三个重叠的圆圈,像是湖面上激起的涟漪。别墅中混合有榻榻米地板的空间和一个既现代又复古的空间。白色的墙壁保护着室内空间的隐私,但同时也带来了足够的阳光。什么是设计的理念?客户又是谁?客户是一对结婚30年了的夫妇和他们的三个孩子。
别墅的名字为什么是圆圈别墅?为什么别墅拥有三个矩形的楼层呢?因为外部的圆圈仅仅是墙壁而已。第二个圆圈是位于二楼的阳台的墙壁。第三个圆圈是屋顶平台的墙壁。这是一栋两层楼的别墅。在修建别墅的过程中一直使用的材料是什么?用灰泥涂抹的外墙上有两种颜色,透明及白色。一个木板被卡在了部分外墙上。别墅位于什么地方?别墅中的日式风格在哪部分?别墅位于筑波,从筑波开车到东京只要一个小时就够了。筑波这个地方有很多实验室和大学。这是一个城市和乡村混合的地方。从别墅到筑波市中心只有10分钟左右的车程。
译者:蝈蝈
The facade creates the image of three overlapping circles rising up from the expansive lawn. A refreshing energy seems to ripple outward across the lawn. The interior blends a tatami-floored Japanese space with a modern-vintage space. The white walls surrounding the indoor space maintains privacy while allowing for plenty of sunlight.- What was the brief and who is the client?A 30 year old generation married couple and 3 children.- Can you tell me about the shape of the house?A facade imagined the threefold circle which floats on the surface of a river.
- Can you tell me about the name, it is called Circle House but made from three rectangular floors?The outside circle is a wall most. The 2nd circle is a wall in the balcony on the 2nd floor. The 3rd circle is a wall in a flat roof. This building is 2 story. What materials did you use throughout? I gave an outer wall a coat of 2 colors of paint on the mortar.(Transparency and white) A wooden board was stuck on the part of the outer wall. Where is the property located? What part of Japan? Tsukuba City is the place to take one hour drive from Tokyo. The Tsukuba, there are a lot of laboratories and universities. It is a town that city and country are mixed. This house is situated in a location that it takes 10 minutes by car from the center of Tsukuba City.
日本筑波圆圈别墅外部实景图
日本筑波圆圈别墅外部夜景实景图
日本筑波圆圈别墅内部实景图
日本筑波圆圈别墅内部厨房实景图
日本筑波圆圈别墅内部过道实景图
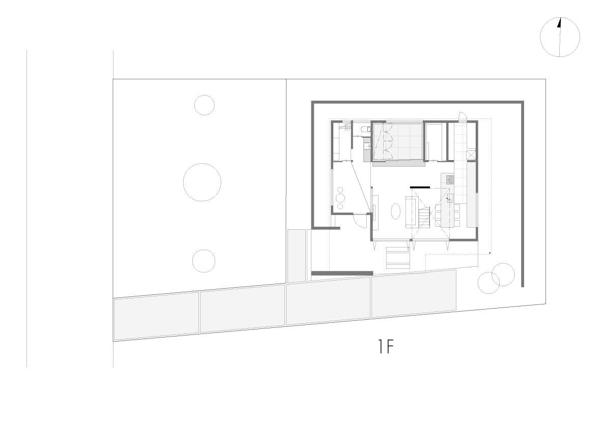
日本筑波圆圈别墅平面图
日本筑波圆圈别墅剖面图
客服
消息
收藏
下载
最近























