查看完整案例


收藏

下载
来自
pS Arkitektur
Chimney Studios的是国际一流的后期制作公司,每年为超过60个国家DE 超过6000件的电影,广告还有电视作品制作后期。他们成立于1995年,全球10个分部共约300名员工,斯德哥尔摩办公室员工约190人。
Chimney Studios are storytellers at heart and use film and communication expertise to produce over 6,000 outputs for more than 60 countries every year. The work covers each step of the creation process, from conception through development, production and world-class post production. Areas include feature films, commercials and TV. Founded in Stockholm in 1995 and now engaging 300 employees in offices in 10 countries. The Stockholm office employs some 190 people.
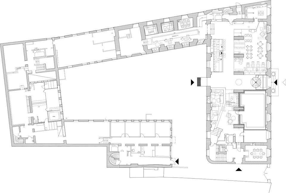
Chimney在斯德哥尔摩Stockholm区的新工作室位于域一座18世纪老楼中,体现出浓郁的繁忙艺术工作室气息,以开放友好的态度迎接员工和来客。入口拱形大厅是一个与同事交谈,午餐,以及喝咖啡的地方。这里充满了温馨的家庭感,二手的家具和全新的家具和谐的被搭配在一起。
The challenge was to fit this friendly, open minded, top-of-the art technical and busy company into an 18th century classified building on Stockholm´s old town. The entrance level houses a great lobby under the vaults. This is where you meet colleagues, have lunch or work over a cup of coffee. Foreign visitors from the film industry enjoy the cool atmosphere and the professionalism from staff and studios. The design concept is The Chimney Family – welcoming, professional and sporting gifts and souvenirs from friends all over the world. The interior is a mix of second hand and new furniture.
Chimney的主要工作区域位于建筑的七层,改建不能动建筑结构,同时因为后期处理工作的专业性质,光学构件和吸音板必须在不影响结构的基础下被安装。除了办公空间之外,工作室还拥有一流的电影院,录音师,编辑室,混音室等等专业工作空间,这些专业工作空间都被容纳在轻型的隔声空间之中。
Chimney Studios occupy 7 stories of the building. Basically no alterations on existing structures were allowed. Light fittings and acoustic panels had to be fitted so as not to make any permanent impact. Besides office spaces it houses a first class cinema, sound studios, editing suites, grading suites and mixing studios. All of these are totally in-situ built light- and sound insulated units.
Chimney group
Design Company: pS Arkitektur
Project Architect: Beata Denton and Therese Svalling (interior design), Peter Sahlin and Leif Johansen (building design)
Lighting Design: Beata Denton
Assisting Architect(s): Mikael Hassel
Location: Stockholm, Sweden
Year: 2015
Area: 4 000 sq.m.
Photographer: Jason Strong Photography
MORE:
pS Arkitektur
,
更多请至:
客服
消息
收藏
下载
最近















