查看完整案例


收藏

下载
可持续发展 Developpement Durable
种植的绿色植物可以减缓水径流的流逝,水被储存在植物和基底层中用于拦截水和减缓水的蒸发。RT 2012–30% (2012之后的热力法规)
The considerable areas devoted to greenery participate in reducing and slowing down water run-off created by the project. Water is stored in the substrate and foliage is used to intercept and drain it by evapotranspiration. RT 2012–30% (Thermal regulations for 2012 and after)
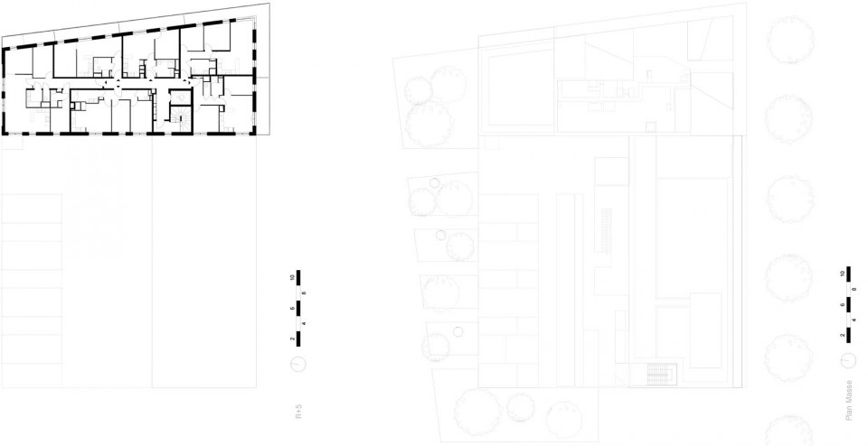
▼总平面图,Site Plan
▼平面图,Floor Plans
▼立面图,Elevations
▼剖面图,Sections
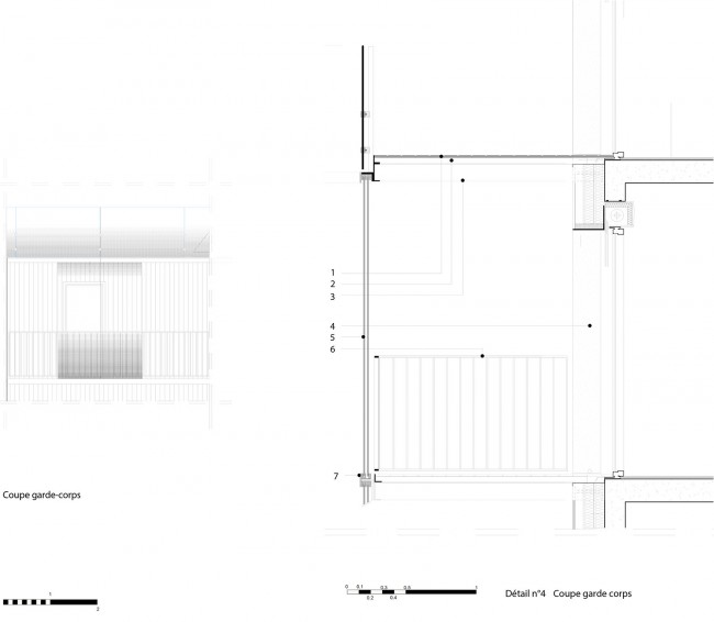
▼建筑细节,Detail Drawing
客服
消息
收藏
下载
最近




























