查看完整案例


收藏

下载
CLIENT // FORTECH
PROJECT TYPE // INTERIOR DESIGN
LOCATION // YOTSUYA ,TOKYO, JAPAN
FACILITY // OFFICE
PROJECT TEAM // KEI SATO
FLOOR SPACE // 105sqm
YEAR // 2016
PHOTOGRAPHS // akihideMISHIMA
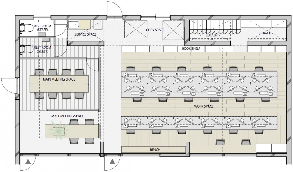
Drawings: Tenhachi Architect & Interior Design
MORE:
Tenhachi Architect & Interior Design
,更多请至:
客服
消息
收藏
下载
最近
























