查看完整案例


收藏

下载
Appreciation towards Z&M for providing the following description:
GMT LONDON Pavilion- 开放明亮的公共商场空间里面构建一个独立的展示空间
GMT LONDON 委托我们来设计他们在中国上海新天地时装周期间的展厅,这是他们第一次来到中国,因此此次展示具有非凡的意义。GMT LONDON 是具有绅士格调的服饰品牌集合,需要一个独特的展示体验空间。新天地南里中庭是一个3 层挑空的大空间,高度16.5 米,光线明亮。我们经过现场考察感受和此地过往展览实例分析,最终获得结论是在构建一个带有屋顶的开放展厅建筑。
GMT LONDON authorize us to design their exhibition pavilion during the new fashion week in Shanghai XINTIANDI, China. This is the first time they come to China, so the show has the special significance.
GMT LONDON collection is a clothing brand with a gentleman style, and needs a unique show space bringing great experience.XINTIANDI NANLI courtyard is a three layer empty large space, with a height of 16.5 meters and bright lights. After the field investigation and an analysis of the past exhibition cases, we finally determine to construct an open exhibition hall with roof.
设计采用连续变化错落有致的特色双层布艺坡顶,形成9 个不同的展示空间。在4.5mx4.5m 大小的框架结构中,每个空间各有自己的空间性格,但遵循相同的模数关系和建造逻辑。单坡与双坡屋顶组合成一个开敞并带有独特体验的大空间。
屋顶材料选用了微透光的布料. 材料与颜色的选择皆在营造出干净轻盈的视觉效果,整个展厅采用钢结构作为支撑结构,布艺屋面的选择也是对此次GMT London 的直接回应。
We designed a continuous-changing and well-arranged double-layer cloth roof which forms nine different exhibition spaces. In 4.5mx4.5m sized frame structure, each space has its own characteristics while following the same modulus relations and architectural logic. Single slope and double slope combine together to form an open and large large space generating a unique experience.
The roof is made of slight light-transmitting cloth, aiming to create a clear and light visual effect. The whole hall uses steel supporting structures; fabric roof is a direct response to the GMT LONDON show.
时装周后期,知名品牌DONG LIANG 栋梁继续使用展厅举办展览“栋梁日”。
At the late phase of the fashion week, the famous brand DONG LIANG continues to use the pavilion for DONG LIANG DAY exhibition.
方案概念来自新天地的传统特色里弄空间与对建筑原型的探究。坡屋顶建筑的经典语言都不同程度的刺激了设计者对此次展示空间的的诠释。
我们尝试将现场分成9 个方形空间,并尝试了各种屋顶的方式。
The concept of the solution originated from the research of the traditional interior spaces in Xintiandi as well as the building prototypes.The classical design language of slope roof stimulated the designers on the interpretation of this exhibition space at different degrees.
We try to divided the site into nine square spaces, and tried various roof forms.
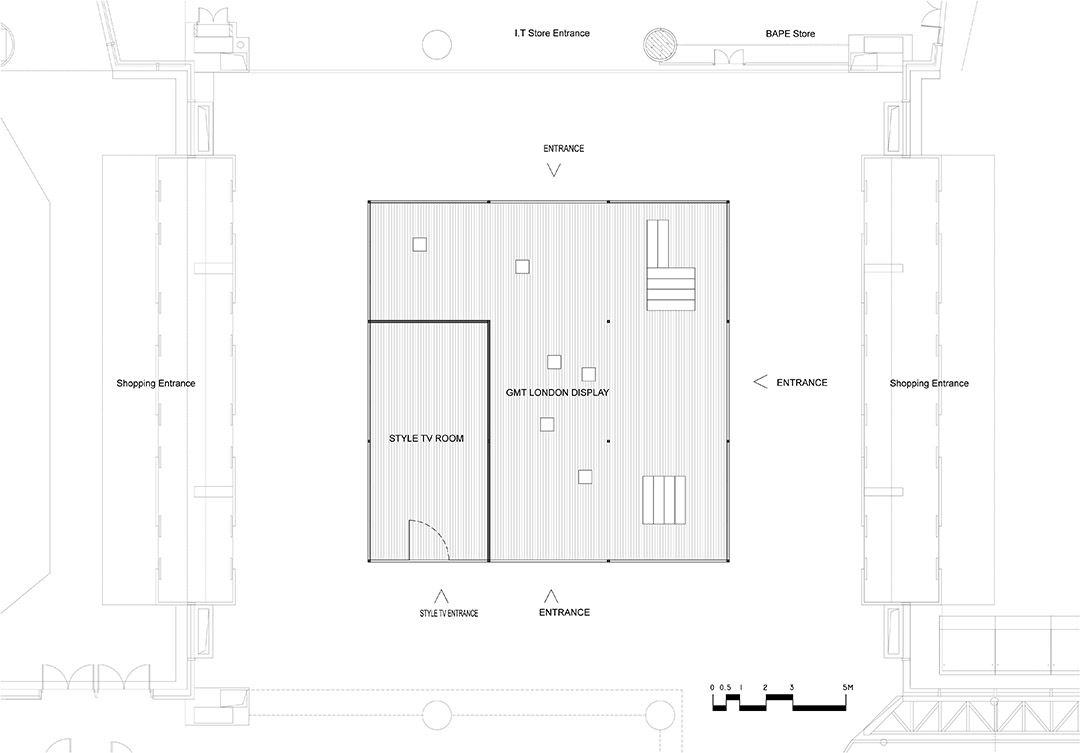
▼地面平面 Floor plan
▼屋顶平面 Roof plan
▼立面图 Elevation
▼剖面图 Section
业主:上海新天地& GMT LONDON
建筑面积:182.5m2
建筑设计:Z&M 建筑行事
设计团队:刘志勇、孟昊
建筑摄影:苏圣亮
Client: Shanghai xintiandi & GMT LONDON
Building area: 182.5 m2
Building design: Z&M ARCHITECTS
Besigned team: LIU ZHIYONG, MENG HAO
Architectural photography: SU SHENGLIANG
MORE: 联系Z&M 建筑行事
,更多请至:
客服
消息
收藏
下载
最近














