查看完整案例


收藏

下载
▼分析图,
diagrams
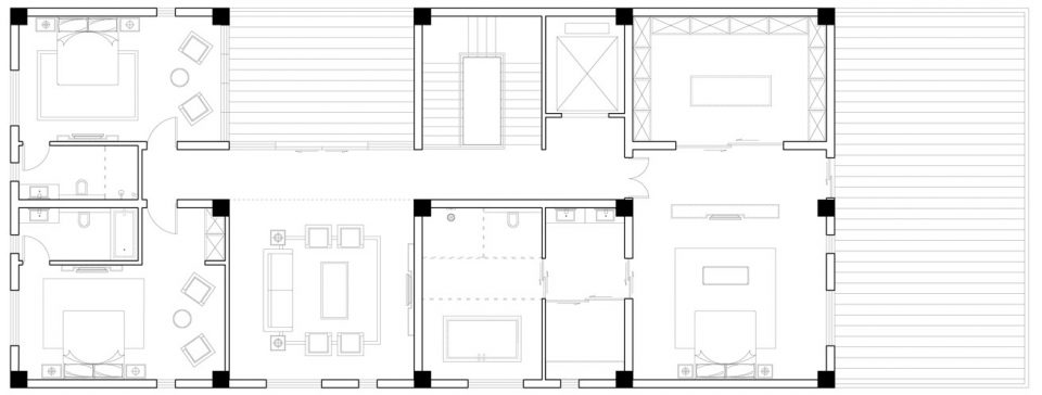
▼平面图纸,
plans
↑ 一层平面图
↑ 二层平面图
↑ 三层平面图
↑ 四层平面图
设计机构:意匠建筑
主持建筑师:李子奇、陈曦
团队建筑师:郝佳、魏强、张栩嘉、刘宁宁
类型:别墅
材料:混凝土、砖、玻璃
时间:2015.10 – 2017.04
摄影:谭啸
翻译:张轩诚
Design: Meta-Artisan Architecture & Design Studio
Chief Architect: Ziqi Li, Xi Chen
Team: Jia Hao, Qiang Wei, Xujia Zhang, Ningning Liu
Category: Villa
Materials: Concrete, brick, and glass
Time: 2015.10 – 2017.04
Photographer:Xiao Tan
Translator: Xuancheng Zhang
客服
消息
收藏
下载
最近






















