查看完整案例


收藏

下载
二楼原始结构图,二楼空间十分狭隘,测量出可才拆除部分,以及咨询出合理、不违建的搭建,进行深度改造。
一楼布局图,打通了无用的墙,利用低梁和柱子从视野分割空间,使客餐厅和功能区分离,并在视野上保持连通,显得开阔大气。
一楼元始结构图,此楼层量和梁于墙错杂,空间规划极为不合理,并且阳台半墙高度尴尬,且有一根巨大呃柱子和低梁分割空间。
二楼布局图图,作为房主的居住的空间,利用天然的粱进行现浇,使两件卧室开阔大气,光照通风极佳,并且满足梳妆、休闲等功能。
负一楼功能布局图,利用楼梯分割的两个空间,满足储物,以及两间客房的居住洗漱功能。
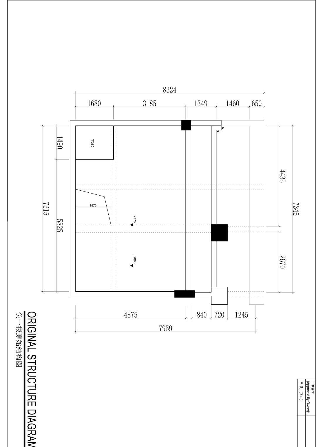
负一楼原始结构图,此楼层是个黑暗空间,确认非承重墙后,将其和阳台打通,满足采光通风的要求。
高级灰的护墙板,将硬装部分营造一面带韵味的画布,客厅到阳台,利用天然的底粱,将空间的层高维持到原高度。
沙发以及餐桌,融入轻奢元素,让整间房屋显得高级而富有品味,通体铺贴的地砖不抢软装的风头。
厨房利用承重墙无法拆除,利用异形结构放置餐边柜,不占用客厅的空间的同时,完成了储物功能,阳台全玻璃的设计,让餐厅充满亮光。
入户和楼梯设计在同一方向,晚归回家可以直接前往二楼卧室,同时利用邻近楼梯的空间,设置公共卫生间,让客人不会入侵私密空间。
客服
消息
收藏
下载
最近












