查看完整案例


收藏

下载
客厅沙发选择浅灰色简约无靠背沙发,搭配个性的抱枕自由靠背,地面采用暖色系亚麻色木地板,铺上简约不规则地毯,很好的中和了客厅黑白灰配色的冰冷感。
多功能房间书房+客房,靠窗一侧选择成品书桌,作为业主平时工作区,一台电脑。另一侧靠墙选择一张折叠沙发,平时工作累了可以躺一下,或者有客人来也可以临时入住。上方上方定制灰色吊柜增加收纳功能,沙发背景墙选择墙面深蓝灰色调,与沙发浅灰色墙面白色相协调,营造一种简约、宁静而又品质的的多功能办公休息环境。
客厅采用黑白灰经典配色干净利落,利用大面积铁艺架搭配当下流行的明装轨道灯,打造不一样的现代工业风,没有原始工业风的粗狂之感,给人的感觉更多的是简约时尚炫酷,一种腔调十足的艺术感。处处透露着个性与精致。改变了主卧门对着客厅的尴尬,把门改到另一侧,原始门空间重新砌墙,一面墙做成一整排的铁艺装饰架,客厅看起来更完整,通透的铁艺架上摆放了主人平时阅读的书籍,和很多有纪念意义的装饰品,既美观又实用。
卧室一角选择成品床头柜,主要作为女业主的化妆桌,上面摆满了女主人的化妆用品。个性的圆形镜子搭配,很有意境。墙面个性的可以自由调节角度的台灯,为看书或者化妆补光使用。
沙发一角摆放80年代很有个性的放映机。很有年代复古的感觉。
沙发边几选择黑色双层简易轻便的铁艺小边几,很有个性。
沙发一角,简约而不简单的时尚感。
这对年轻夫妻对生活品质要求比较高,平时喜欢喝红酒,对于酒柜的搭配也很讲究,选择和沙发另一角复古的放映机相呼应的复古黑色铁艺酒柜,里面摆满了各种样式的酒,成了客厅一道亮丽的风景,显得家里大气上档次。
阳台一侧作为生活阳台放置洗衣机+烘干机,上面定制吊柜作为收纳,洗衣机里面一侧靠窗设计的水池,方便冲洗。地面选择地板砖和客厅地板颜色一致,视觉上扩大客厅空间,也方便打理。 阳台另一侧空间弧形一角充分利用,定制成不规则榻榻米,作为休闲一角,最外侧靠窗拉开白色飘逸的窗帘,坐着或者葛优躺在榻榻米上喝杯咖啡看看书,真的很惬意。
餐厅利用次卧部分面积,同时借助两边柱子定制餐桌,上方搭配一字型简约吊灯,很有格调。餐厅过道上方局部吊顶处理,嵌入式天花灯,增加空间层次感。过道靠墙定制一整排到顶的柜体,鞋柜+收纳柜+电器柜+拉伸酒柜。拥有很足的收纳空间。整体定制柜也让空间更整洁大气。
厨房开放式为主,改变卫生间的门的位置后,原始门的空间砌墙靠墙做成台面扩大厨房操作台面,靠窗设计L型操作台面,超大台面+合理动线设计充分满足烹饪最佳的洗切炒放的功能需求。上方定制的吊柜增加更多的厨房收纳功能。
餐桌平时也可以作为办公看书的地方。从餐厅看书房,利用长虹玻璃移门代替常规门扩大视觉感,既不影响采光,空间可开放可独立。
改变卫生间的门的位置,卫生间设计成现代比较流行的三分离式,马桶,淋浴,干区独立分开,使用起来也比较方便。 干区选择黑色基调金属元素勾勒的台盆柜,超高颜值,时尚而精致,也方便打理。镜子的搭配也很个性,正面可以显示正常的时间和温度,打开镜子背面可以成小型收纳空间放置日常化妆用品。 马桶和淋浴空间都选择磨砂玻璃移门,不影响采光,墙面采用白色菱形瓷砖拼接,打造干净清爽的卫生间空间。
淋浴空间靠窗放置独立个性浴缸,当累了、感到有压力和小颓废的时候,就把自己丢到温暖的浴缸里,静静的休息一会儿。
卧室白色吊顶,深灰色床头背景墙,简约的色调搭配舒适安逸,宁静温馨的睡眠环境。
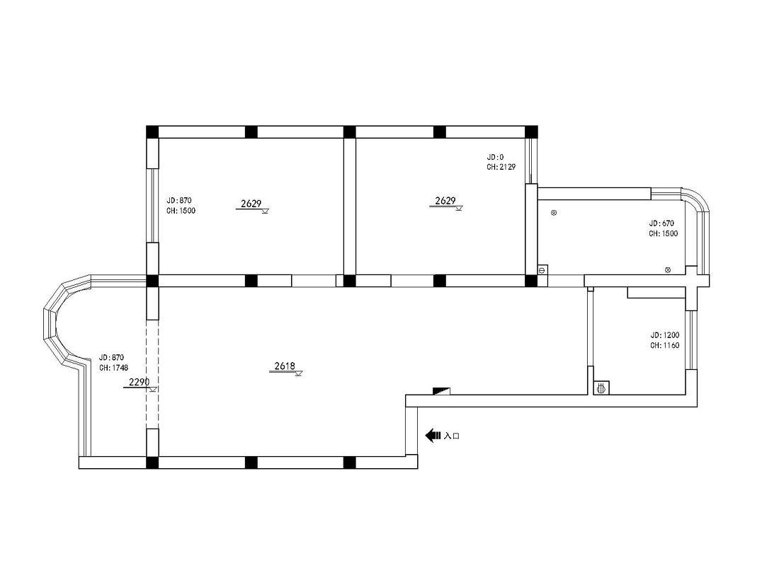
原始户型图 1、进门一览无遗,没有任何隐私。 2、餐厅及整个过道空间很窄只要2m也放置不了餐边柜,收纳空间太少了。 3、厨房比较小还不到4平方,可操作台面满足不了业主需求。 4、卧室通风效果不是很好门对着客厅隐私不是很好。 业主需求 房间一般两人居住,不需要电视,需要很多的收纳空间,比较喜欢经典黑白色调工业风,需要办公的空间最好有个独立的书房,如果有客人需要临时居住的地方。
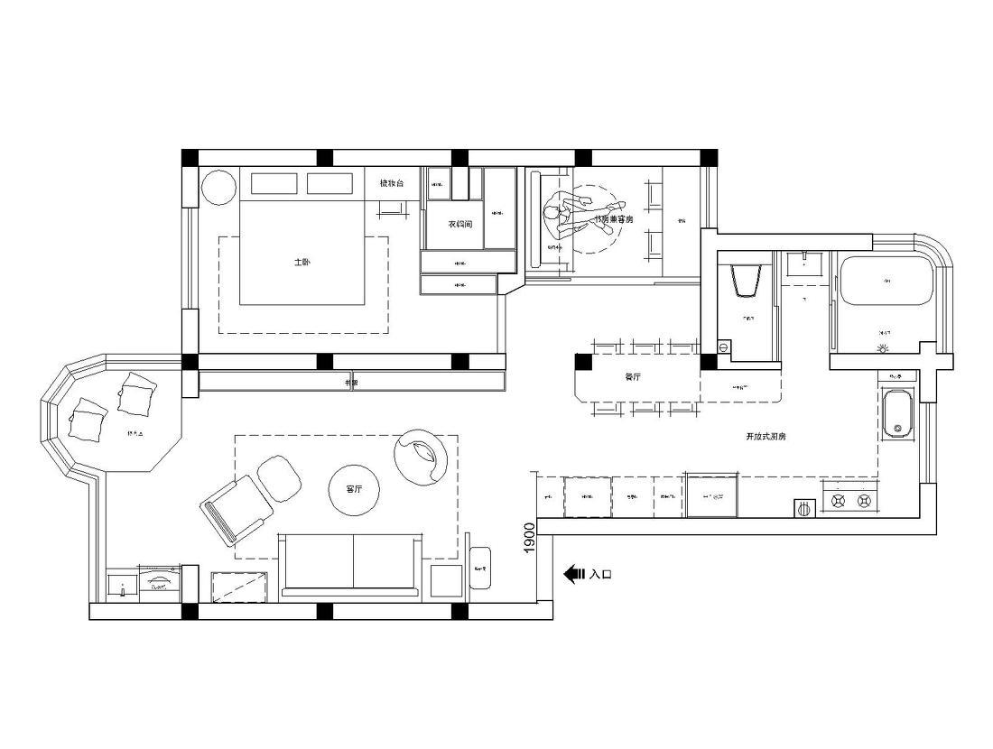
改造后平面布局图 整体房型是柱形结构,在改造上做了很多的突破,打破常规的房型结构,把相对比较独立的空间,做成开放式的空间上视野会比较宽敞,感觉房子面积大了很多。 1、进门做了玄关隔断,这样避免进门一览无印毫无隐私的尴尬。 2、改变主卧门对着客厅的尴尬改到另一侧,达到南北通风效果,同时借用次卧部分面积做成步入式U型衣帽间,增加更多的收纳空间。 3、缩小的次卧做成多功能房间,书房+客卧,利用长虹玻璃移门代替常规门,既不影响采光,空间可开放可独立。 4、餐厅借助部分次卧面积,同时餐桌借助两边柱子居中放置,很有格调。这样餐厅腾出靠墙的空间做出一整排到顶的柜体,鞋柜+收纳柜+电器柜+拉伸酒柜。拥有很足的收纳空间。 5、改变卫生间的门的位置,原始门的空间砌墙外侧做成台面与餐桌结合扩大厨房操作台面,卫生间设计成三分离,马桶,淋浴,干区独立分开,使用起来也比较方便。 6、厨房开放式为主,靠窗L型操作台面,扩大厨房操作台面,充分满足烹饪最佳的洗切炒放的合理动线。
客服
消息
收藏
下载
最近




















