查看完整案例


收藏

下载
在客厅的设计中,落地窗引景入室,为家人生活营造更好的互动性和通透感。
同时,餐厅与客厅进行区域划分,并用中性色进行颜色延伸,将两个空间有效衔接,使其更有整体性。餐边柜与台盆相结合增强了它的实用性,为就餐营造方便,省去了往返厨房的来回奔波。
地下一层与房主沟通后,将B1层作为家人的休息区。将通往天井的墙面与室内打通,引入自然光线,不仅增强了采光度也加大了休闲区域,为一家四口的休闲活动增添了更多的活动范围。靠近楼梯口处用抬高划分区域,做了书架及日式榻榻米,满足了女主看书与茶歇的要求。中间区域的家庭影院更是满足了男主影音梦想。同时整面墙的木饰面柜子为女主收纳增加了空间。在天井打通的区域处做了一个开放式的水吧,并做了一面文艺墙。文艺墙采用充满质感和层次的灰色瓷砖进行贴面,为整个空间增添了亮点。
整套房型有效的区域划分及每一个细节的充分利用都无不彰显出房主的审美和格调,以及对高品质生活的追求。
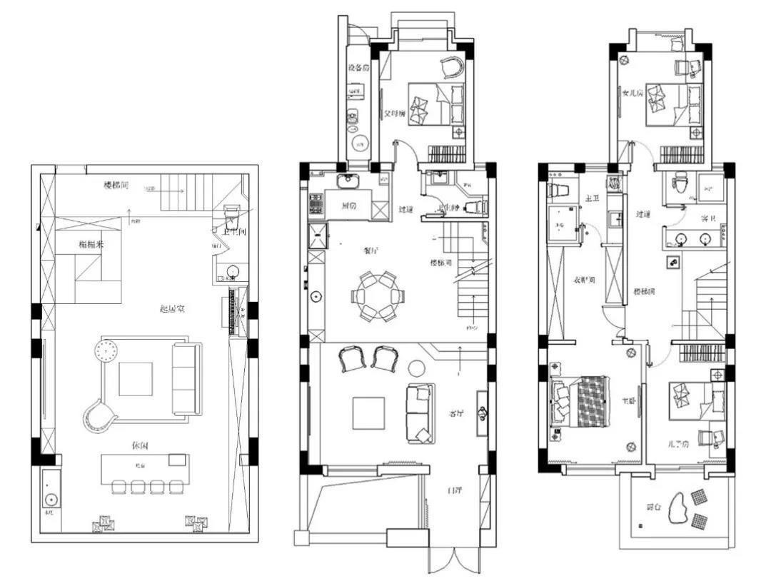
B1F,一层,二层 , 房型原始图
B1F,一层,二层 , 房型设计摆放布置图
客服
消息
收藏
下载
最近








