查看完整案例


收藏

下载
这个项目是华中科技大学无锡研究院的产业服务配套项目,在楼宇的中庭和一层的北部室内。项目不大但是涉及了建筑设计、景观设计和室内设计,研究解决了“墙”的内外问题,还是比较有意思的。
景观部分
俯瞰室外景观建筑
Before
俯瞰室外景观建筑
After
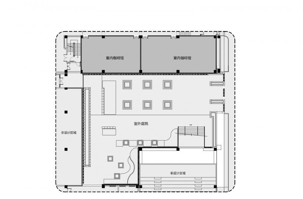
最初建设方的诉求是将目前的室外中央庭院的绿化推掉,利用这个场地做一个咖啡和会议空间。这样的结果是中心绿地没有了,从楼上各层往下望的视觉感受也很难和谐。另外,之前的中心绿地是完全“市政”式的几棵树,像卫兵列队一样,边界感很强,很难有人愿意在里面停留,让人很紧张。
Before
After
其他室外图片赏析
Before
After
我们利用现在咖啡馆所在的一楼房间向外拓展了一个柱距,从而得到了一个可以利用的更大的室内空间,同时又保留了中心绿地。
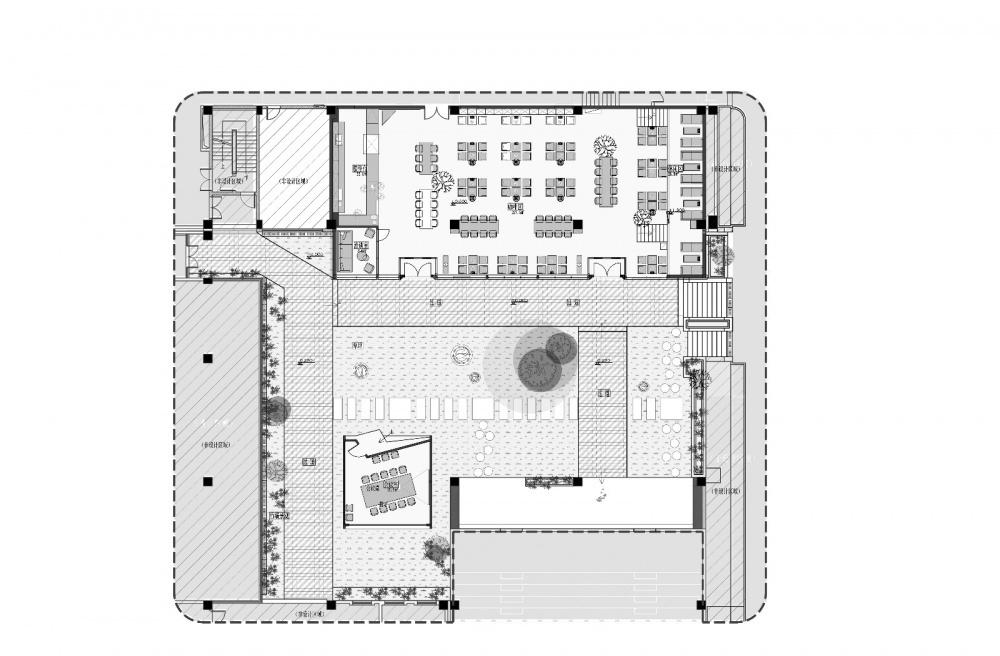
中心绿地从新做了舒缓的让人放松的新的景观绿化设计,咖啡厅的拓展得到新的外立面,几乎通体的落地玻璃,朝南的方向,又给了咖啡厅更好的采光,同时又把室内外的视线链接,互相借景。
扩建部分的墙体和之前原有建筑的墙体用了一样材质和规格的花岗岩,和原主体建筑衔接和谐,就像是一开始就规划这样的,而不是生硬的加建。
Before
After
室内部分
室内实景图
Before
After
Before
After
咖啡厅室内我们把最西侧设置成吧台操作区;最东侧设置成一个有高差的错层;其他中间的大面积是联系开放的空间,配以活动的家具桌椅。这样的设置是为了空间又更多功能上的延展,可以将桌椅撤掉,就变成了一个报告厅或者路演厅,错层成了舞台。吧台操作区实景图
建设方的需求里有一个私密独立的小型会议,原计划是放在咖啡厅里的。考虑到声音的干扰和咖啡厅的连续开放空间完整性,我们把它设置在了中心绿地中一个独立的单体建筑里,会议使用的体验也变得有趣很多。会议室部分
会议室实景图
PLANBefore
PLANAfter
CAT XUE项目后言:这次的设计中尝试了用草图大师模型加LUMION做动画的形式汇报方案,更加直观的展现了整个设计的方案,在汇报中确定了较大的优势,算是在传统设计流程中的小小突破。
客服
消息
收藏
下载
最近































