查看完整案例


收藏

下载
新的理念:10公分的实木厚板取代传统的床头柜!更大的优点是,隔板下面不积灰,地板容易清理!实木厚板是废料利用。
主卧室:等待床垫,等待投影仪!躺在一张可调节高低的床上,看着超大画面的投影画面!这就是家庭小影院!与时俱进,家居生活在于智能化!
入户门的一抹红色,老物新做。
业主有泡茶的习惯,没有油腻的水吧和厨房分离。
业主收集到的一些欧洲旧物。
崖柏与一些小摆件。
实木隔板正好补充了建筑缺陷,利用了这块无法拆除的空间。圆桌和也很实用。
设计师利用伐木工遗弃的树干,制作的小杯垫。非常的原生态!
由于业主预算比较紧张,又考虑环保和质感。因能够接受一些另类元素,设计师选中的破败老榆木门板
经过打磨上蜡,破败老榆木门板的新生。质感杠杠滴。等待家具到位,照片待跟新。
旧物翻新。
新与旧的结合,简单的硬装修,独特的软装饰,创意的暖光源。身在其中,心情是舒畅的。
这个水吧仅仅泡茶和洗水果,完全远离厨房的油烟,是不是很环保呢!
空间有限,厨房由原来的设备阳台改建。麻雀虽小,五脏俱全。不锈钢台面的选择是最最最正确,因为最实用!十年之后,厨房还是这个厨房!
卫生间门口,女主人的小心思
卫生间,看出亮点了没有?前面说业主预算紧张,这台板眼熟吗?没错,就是展示隔板多余的板材,经过打磨及防潮处理,用在卫生间也是刚刚好。
好吧,这个大衣橱的背面还是一样大的衣橱!两个这样大的储藏空间也是杠杠滴!
这块区域就是男主人以后看书=的地方啦!
不要觉得小,因为85平米,除掉主卧室,次卧,客厅及餐厅。还能挤出这么一块用作书房,男主人的幸福感满满的。
小卧室的一角。旧的压花牛皮椅子。依然是设计师帮忙淘来的旧物。
小卧室,以后的儿童房。目前搁置一套梳妆台呀!这个旧物很经典:铜流金。
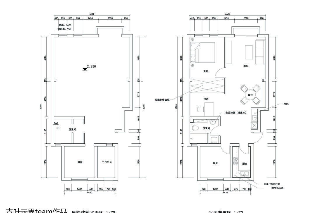
此房交付时只有厨房和卫生间,其他无隔墙。此房设计亮点:将原厨房改成次卧,工作阳台改为厨房间。客厅和主卧朝南!南北通风极好。所有使用功能考虑到位后,过道的面积不做玄关,一进家门,整个家都在眼底,非常敞快舒适。
客服
消息
收藏
下载
最近























