查看完整案例


收藏

下载
追求现代极简的风格,整体简约整洁,但又不失品味和思想上的优雅大方。所以在整个设计师都透漏出简约整洁,遵循,少即是多、以简取代繁,单一性、抽象性、纯净色。
餐厅选择一半台阶的错层餐厅,在就餐时不仅可以一览无余的欣赏外面风景还可以更清晰的感受到家人孩子们嬉戏。
卧室继续选用了黑色调的家具,但是暖色调的灯光给整个空间带来了温馨舒适感。
长条形的大书架,不同分类的书籍整齐有序的摆放,大大的落地窗,工作或看书累了,一抬头,外面的风景一览无余,是不是整个心情瞬间High很多......
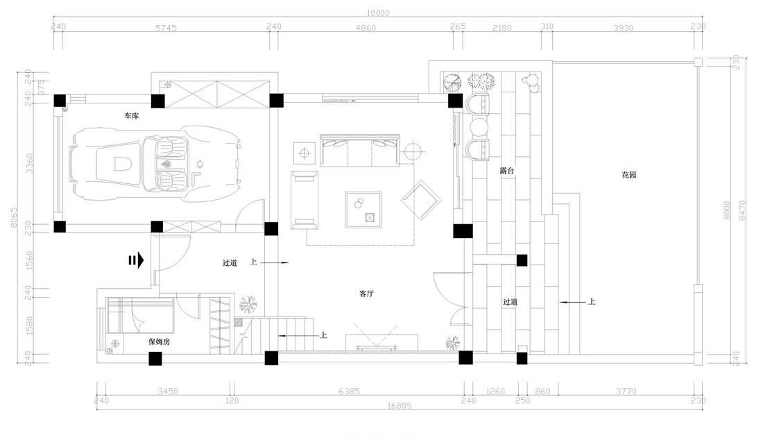
一层平面布置图
二层平面布置图
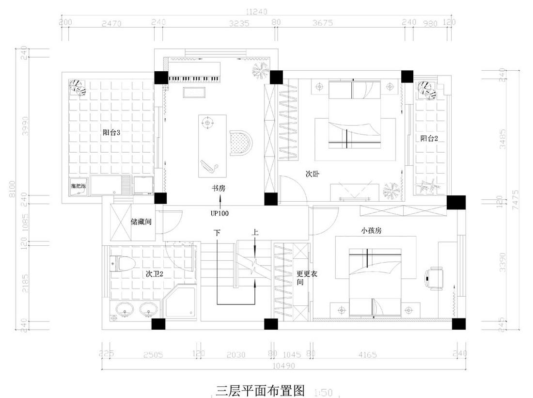
三层平面布置图
四层平面布置图
客服
消息
收藏
下载
最近






















